Skip to content

Content

Home in Mornington

Mornington VIC 3931

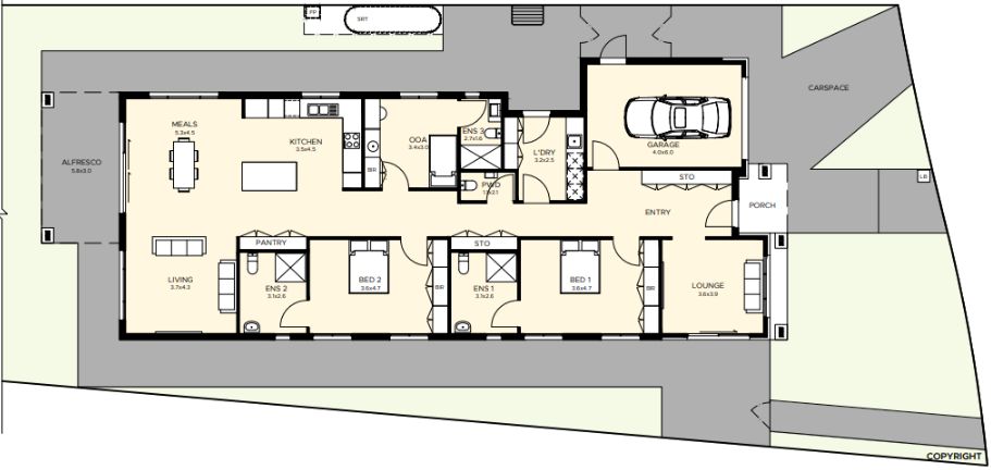
3 bed

3 bath

1 parking
space

This modern SDA home located at Mornington offers a quiet residential feel while staying connected to key services and community infrastructure. The property is positioned to support comfortable, accessible living in a welcoming neighbourhood.

With easy access to shopping, medical care, and open green spaces, this home is well suited to residents who want a balance of independence, convenience, and support close by.

Support Model

Tenants at this property have choice and flexibility around how supports are delivered. The home is set up to enable shared living with privacy and comfort, and onsite overnight assistance is available to provide added reassurance and safety as needed.

Housemate matching is tenant-led: prospective tenants can meet through arranged meet-and-greets, giving everyone a chance to get to know each other and decide if the living arrangement feels right. The final choice remains with the tenants to ensure a good fit.

Property Features / SDA Design

This property has been designed to support safe, accessible living and is built to the following SDA standards:

SDA building type: House

SDA design category: High Physical Support

SDA funding categories accepted:

Improved Liveability

Fully Accessible

High Physical Support

Number of SDA residents: 2

Onsite Overnight Assistance: Yes

Local Area

Nearest Shopping Centre: Mornington Village Shopping Centre, Main Street, Mornington VIC, Australia

Nearest Hospital: Rosebud Hospital, Point Nepean Road, Capel Sound Mornington Peninsula Shire, VIC, Australia

Nearest Park: Mornington Botanical Rose Gardens, & Mornington, Tyabb Road, Mornington VIC, Australia

This home is managed by APPC Developments TA Life Care Assist, a trusted SDA housing provider committed to delivering safe, high-quality, and inclusive homes that support independence, dignity, and wellbeing.

Interested in this property?
Here are your options

Ready to apply? Share your details with the provider

Need more detail? Ask the property provider a question

Register to favourite

Property Features

The building
Single storey
Access
Wide doorframes Wide pathways
Environment
Air conditioning Heating
Outside
Secure backyard
Shared Living
Storage for personal equipment Window Built-in robe Direct access to yard / courtyard / garden Private/ensuite bathroom Private living space Private kitchen Private laundry Pet friendly
Registered SDA: Yes
SDA Category: Improved Liveability
Fully Accessible
High Physical Support
Stay Duration Permanent
Medium term

Provider Details

SDA Provider: Life Care Assist

Area Map

Interested in this property?
Here are your options

Ready to apply? Share your details with the provider

Need more detail? Ask the property provider a question

Register to favourite