Skip to content

Content

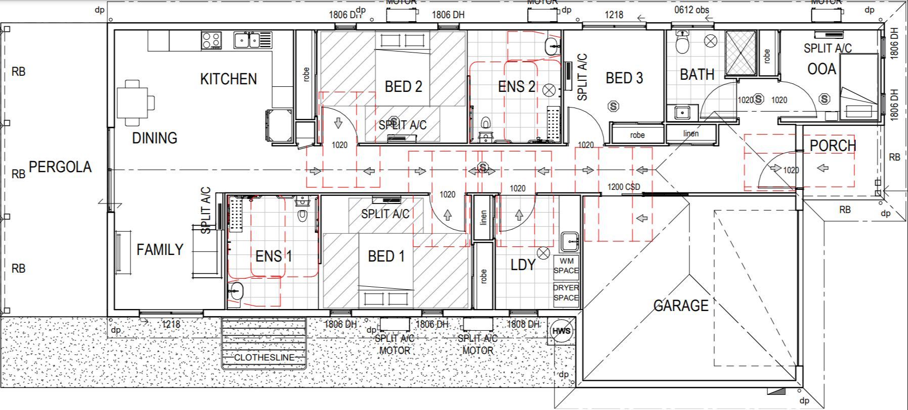
2 SDA + OOA + Guest Room Home, in Andergrove

Andergrove QLD 4740

4 bed

3 bath

2 parking
spaces

This HPS home is fully NDIS certified and compliant to meet the most up to date SDA guidelines.

This home has a modern interior, with the following features:

* 2 HPS bedroom, with an ensuiteĀ and SDA accessibility options, split system air conditioning and capacity for ceiling hoists if required.

* OOA bedroom for onsite overnight support

* Guest Room for family or friends

* TV in each room

* Modern kitchen with:

a height-adjustable bench top,

dish drawer dishwasher,

Caesarstone benchtops,

strip lighting to the overhead cupboards

bright lighting, filled with natural light

* Large living room

* Spacious Dining room

* Separate laundry, with washer and dryer provided.

Contact Michael Knights on 0409 018 778 / michael@horizonpropertyalliance.com.au or Kylie Peirce on 0493 028 591 / k.peirce@horizonsdacare.com.au. for more information.

*All imagery is for illustrative purposes only and represents finishes similar to this property.

Interested in this property?
Here are your options

Ready to apply? Share your details with the provider

Need more detail? Ask the property provider a question

Register to favourite

Property Features

The building
Single storey
Access
Ceiling hoist Wide doorframes Wide pathways
Environment
Air conditioning Heating
Outside
Secure backyard Secure frontyard Outdoor living/entertainment area Undercover access from parking to property
Shared Living
Storage for personal equipment Window Built-in robe Direct access to yard / courtyard / garden Private/ensuite bathroom Shared living space Shared kitchen Shared laundry Pet friendly
Registered SDA: Yes
SDA Category: Improved Liveability
Fully Accessible
High Physical Support
Stay Duration Permanent
Medium term
Short term

Provider Details

SDA Provider: Horizon SDA Care

Area Map

Interested in this property?
Here are your options

Ready to apply? Share your details with the provider

Need more detail? Ask the property provider a question

Register to favourite