Skip to content

Content

High Physical Support House, Berrimah, NT

Berrimah NT 0828

2 bed

2 bath

2 parking
spaces

Now Under Construction! This brand new, architecturally designed High Physical Support house is sure to WOW you. The house is situated in the brand new and sought after Parkside Estate.

Parkside Berrimah is an exclusive 58-lot residential estate perfectly located just ten minutes from the center of Darwin and Palmerston, Casuarina and Darwin Airport. Parkside is a family-orientated community featuring a recreational park including play equipment facilities, within minutes of nearby schools, childcare, shops, hospitals and sporting facilities.

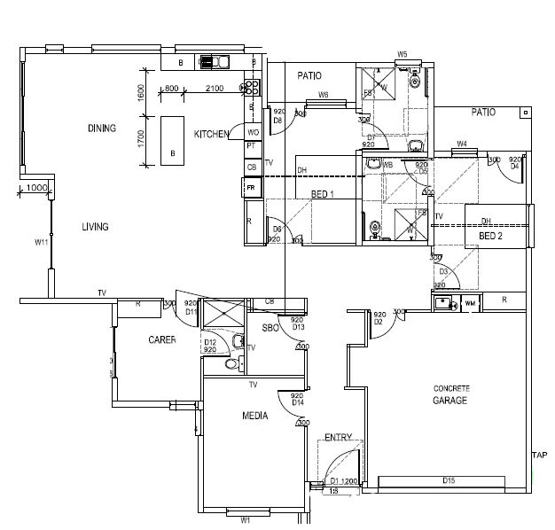
The property is designed to support 2 SDA tenants, with independent living spaces, ensuite and outdoor retreats. Whether it is independent living or a social environment you are after, the property can accommodate for both.

Interested in this property?
Here are your options

Ready to apply? Share your details with the provider

Need more detail? Ask the property provider a question

Register to favourite

Property Features

The building
Single storey
Access
Ramp access Wide doorframes Wide pathways
Environment
Air conditioning Heating
Outside
Secure backyard Garden Deck/verandah Outdoor living/entertainment area
Shared Living
Storage for personal equipment Window Built-in robe Direct access to yard / courtyard / garden Private/ensuite bathroom Private living space Shared kitchen Shared laundry Pet friendly
Registered SDA: Yes
SDA Category: High Physical Support
Stay Duration Permanent

Provider Details

SDA Provider: ADAPT Housing

What's nearby

Shopping 15 mins stroll
Other 12km to Darwin CBD

Area Map

Interested in this property?
Here are your options

Ready to apply? Share your details with the provider

Need more detail? Ask the property provider a question

Register to favourite