Skip to content

Content

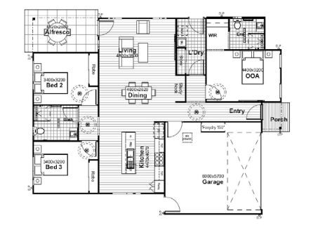
Flagstone, Jimboomba Qld - Improved Liveability House

Flagstone QLD 4280

3 bed

2 bath

2 parking
spaces

IMPROVED LIVEABILITY HOUSE – AVAILABLE NOW!

We have an exciting new opportunity for two SDA approved participants to reside in a brand new Improved Liveability home available now in Jimboomba.

This purpose built home offers incredible design features that create a space for its residents to feel safe, secure, and live the lifestyle they desire.

Property features:

3 Bedrooms suitable for 2 SDA residents

Room for supports (OOA)

2 Bathrooms

Open plan kitchen, living, and dining areas

Outdoor alfresco area, perfect for entertaining

Double garage

6 star energy rating

Ducted air-conditioning

Vinyl flooring throughout

This home is located in Flagstone, Jimboomba close to shops, parks & community facilities to ensure participants have access to all they require within the community.

For more information, or to apply for this property please contact 1300 419 819 / info@disabilityhousingsolutions.com.au

Interested in this property?
Here are your options

Ready to apply? Share your details with the provider

Need more detail? Ask the property provider a question

Register to favourite

Property Features

The building
Single storey
Environment
Air conditioning Heating
Outside
Secure backyard Outdoor living/entertainment area Undercover access from parking to property
Shared Living
Storage for personal equipment Window Private/ensuite bathroom Shared bathroom Shared living space Shared kitchen Shared laundry
Registered SDA: Yes
SDA Category: Improved Liveability
Stay Duration Permanent

Provider Details

What's nearby

Shopping Shopping Centre: Flagstone Village 2.2km / 5 mins by car
Other Closest Hospital: Logan Hospital 41.3km / 38 mins by car.
Park: Flagstone Adventure Park 1.6km / 2 mins drive

Area Map

Interested in this property?
Here are your options

Ready to apply? Share your details with the provider

Need more detail? Ask the property provider a question

Register to favourite