Skip to content

Content

Belmont

Belmont VIC 3216

4 bed

3 bath

2 parking
spaces

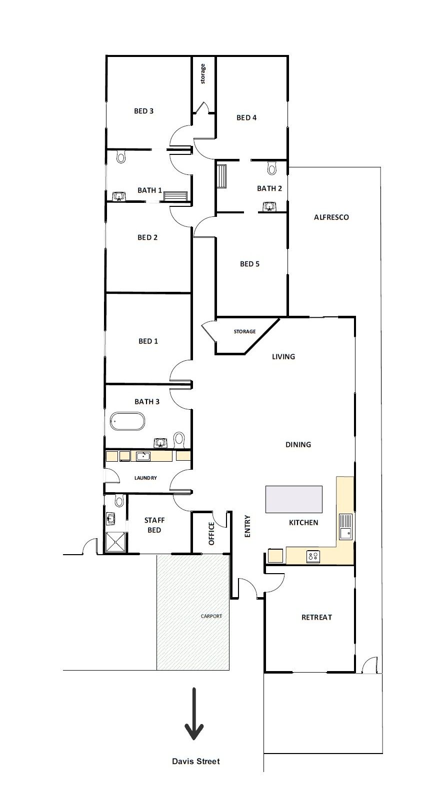
A vacancy is now available at the newly built Davis House, Belmont, within a spacious five-bedroom SDA home. One of the standout features of this home is the open plan living and dining area, complete with a fully equipped kitchen.

The home offers two separate living areas, to allow residents to engage with visitors without inconveniencing their fellow housemates. This spacious five-bedroom residence presents an excellent chance to embrace an independent lifestyle within a dynamic community.

Accessible features include:

- Overhead hoist tracking in every bedroom and bathroom

- Fire sprinkler protection including backup power supply

- Slip resistant vinyl timber floorboards in both living spaces

- Staff sleepover room with private shower and toilet facilities.

Interested in this property?
Here are your options

Ready to apply? Share your details with the provider

Need more detail? Ask the property provider a question

Register to favourite

Property Features

The building
Single storey
Access
Ceiling hoist Wide doorframes Wide pathways
Environment
Air conditioning Heating
Outside
Secure backyard Raised garden bed Garden Deck/verandah Outdoor living/entertainment area Undercover access from parking to property
Shared Living
Storage for personal equipment Window Built-in robe Direct access to yard / courtyard / garden Shared bathroom Shared living space Shared kitchen Shared laundry
Registered SDA: Yes
SDA Category: High Physical Support
Stay Duration Permanent

Provider Details

SDA Provider: Grayllen. Co Ptyltd SIL Provider: genU Karingal St Laurence

Application Criteria

Davis House is female only.

The applicant is eligible for and able to secure NDIS Specialist Disability Accommodation (SDA) funding, Fully Accessible and High Physical Support.

The applicant has the financial means to pay for household and general living costs. For example: utilities, food, etc.

The applicant is willing for genU Karingal St Laurence to be their SIL service provider and is prepared to sign a service agreement with genU Karingal St Laurence.

What's nearby

Other Nestled in a tranquil residential neighbourhood, your new home enjoys a prime location between Belmont’s bustling High Street shopping district and the Waurn Ponds shopping complex. This provides convenient access to an array of amenities, including supermarkets, shops, restaurants, GP’s, and entertainment options. Its proximity to shopping centres, parks, pharmacies, and medical practitioners establishes the perfect framework for a balanced and harmonious life.

Area Map

Interested in this property?
Here are your options

Ready to apply? Share your details with the provider

Need more detail? Ask the property provider a question

Register to favourite