Skip to content

Content

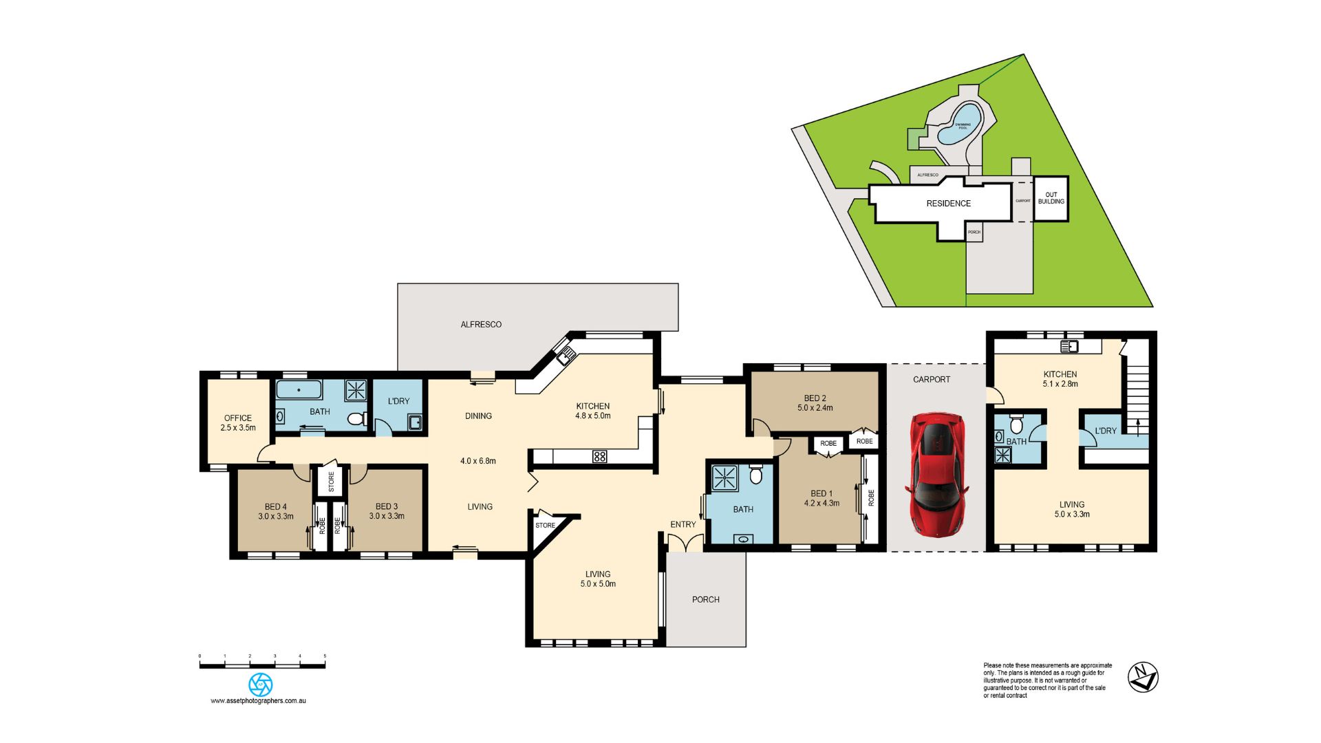
Cobbitty: Spacious Disability House with Pool

Cobbitty NSW 2570

5 bed

2 bath

2 parking
spaces

Enjoy the perfect mixture of country and city living in this comfortable disability house. The property features five bedrooms, two open living spaces and two bathrooms.

The single-storey home is on a spacious block of land, has wide door frames, and level access throughout the house. It featured a covered outdoor space with a BBQ and pool, perfect for those who enjoy spending time outside. It is located near community facilities like local shopping centres, medical centres, and village markets.

The current residents are over sixty. They love relaxing together and enjoying their peaceful house after a long day of activities.

Features of the property

• Five bedrooms with built-in wardrobes

• Wide door frames

• Air-conditioning and heating

Lifestyle highlights

• Close to community facilities

• Pool

• Accessible vehicle for residents

Interested in this property?
Here are your options

Ready to apply? Share your details with the provider

Need more detail? Ask the property provider a question

Register to favourite

Property Features

The building
Single storey
Access
Ramp access Wide doorframes Wide pathways
Environment
Air conditioning Heating
Outside
Garden Outdoor living/entertainment area Pool
Shared Living
Window Built-in robe Shared bathroom Shared living space Shared kitchen Shared laundry
Registered SDA: Yes
SDA Category: Basic
Stay Duration Permanent

Provider Details

Application Criteria

IMPORTANT THINGS TO KNOW

To apply for this vacancy you must have Specialist Disability Accommodation (SDA) and Supported Independent Living (SIL) funding in your NDIS plan. There will be fees payable to the SIL provider and a rent contribution paid to Hume Housing.

ABOUT OUR PARTNER: Northcott

Northcott is a not-for-profit disability service provider that works with customers to realise their potential. As one of Australia’s largest not-for-profit disability services organisations, we provide services from metropolitan and regional locations throughout NSW and the ACT. We have almost 90 years of experience and expertise in the disability service industry.

ABOUT HUME COMMUNITY HOUSING:

Hume Community Housing is a NDIS registered provider and the accommodation provider for the advertised Specialist Disability Accommodation (SDA) property. Hume has more than 30 years’ experience in providing sustainable housing options and delivering person-centered tenancy and property management and support services to over 9,000 customers across New South Wales. Hume creates vibrant, connected communities through the provision of outstanding homes and equitable services. Hume appreciates the unique needs of each customer and works collaboratively with them and service partners to ensure our customers live happily and safely in a home of their choice.

HOW CAN I FIND OUT MORE?

Visit our website www.humehousing.com.au/disabilityhousing.html for more information about the program and eligibility.

Apply now for this vacancy and Hume Housing will contact you to discuss your eligibility and next steps.

Alternatively, to find out more before applying, please call Hume Housing on 1800 004 300 and ask to speak with a member of the Housing for People with Disability team or email HPWDallocations@humehousing.com.au

What's nearby

Transport • Accessible vehicle for residents

Area Map

Interested in this property?
Here are your options

Ready to apply? Share your details with the provider

Need more detail? Ask the property provider a question

Register to favourite