Skip to content

Content

Branyan, Bundaberg - Qld

Bundaberg North QLD 4670

4 bed

5 bath

2 parking
spaces

We have a brand new home available now in Branyan, 7km southwest of central Bundaberg, Qld.

This property has been constructed under the NDIS Specialist Disability Accommodation (SDA) guidelines to Robust Design Standards, however applications will be considered from other participants with SDA approval outside of the Robust level. Contact our team to discuss your options.

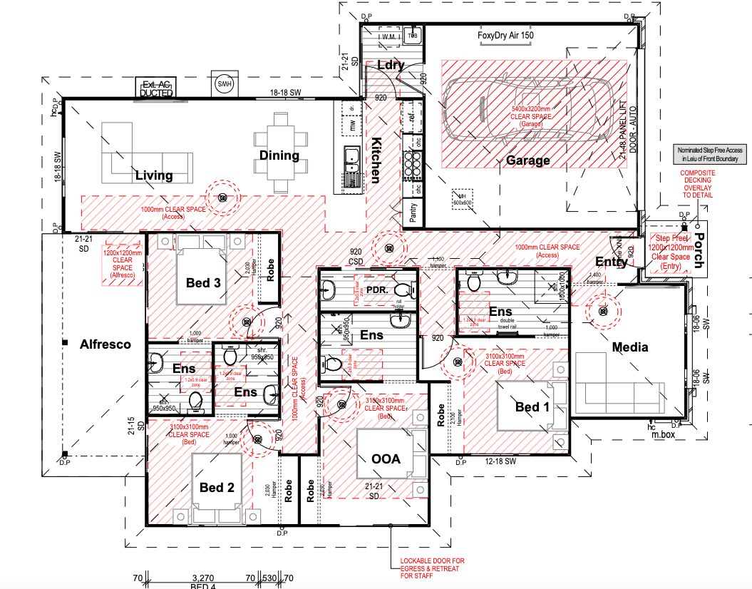
This home offers:

4 Bedrooms suitable for 2 SDA residents

Separate room for onsite supports (OOA) / Breakout room

Private ensuite to each bedroom + a powder room

Spacious open plan kitchen, living & dining areas

Additional media room for space & privacy

Ducted air conditioning throughout

Modern design including stone bench tops and stainless steel appliances

Large outdoor alfresco area

Double garage

Branyan is a rural / residential town located on the Burnett River that will provide a calm, comfortable and welcoming feel to the residents lucky enough to call this new house their home!

Contact our team today on 1300 419 819 or at info@disabilityhousingsolutions.com.au for further information or to apply for this amazing new property.

Interested in this property?
Here are your options

Ready to apply? Share your details with the provider

Need more detail? Ask the property provider a question

Register to favourite

Property Features

The building
Single storey
Access
Wide doorframes Wide pathways
Environment
Air conditioning Heating
Outside
Secure backyard Deck/verandah Outdoor living/entertainment area Undercover access from parking to property
Shared Living
Storage for personal equipment Window Built-in robe Direct access to yard / courtyard / garden Private/ensuite bathroom Private living space Shared living space Shared kitchen
Registered SDA: Yes
SDA Category: Robust
Stay Duration Permanent

Provider Details

What's nearby

Transport Bundaberg Railway 6.5km / 10 mins drive
Bus stop 6.8km / 12 mins drive
Shopping Kensington Shopping Centre 2.9km / 5 mins drive
Other Bundaberg Hospital 5.3km / 8 mins drive
Cafes / Restuarants 3km / 7 mins drive

Area Map

Interested in this property?
Here are your options

Ready to apply? Share your details with the provider

Need more detail? Ask the property provider a question

Register to favourite