Skip to content

Content

Improved Liveability Melton

Melton South VIC 3338

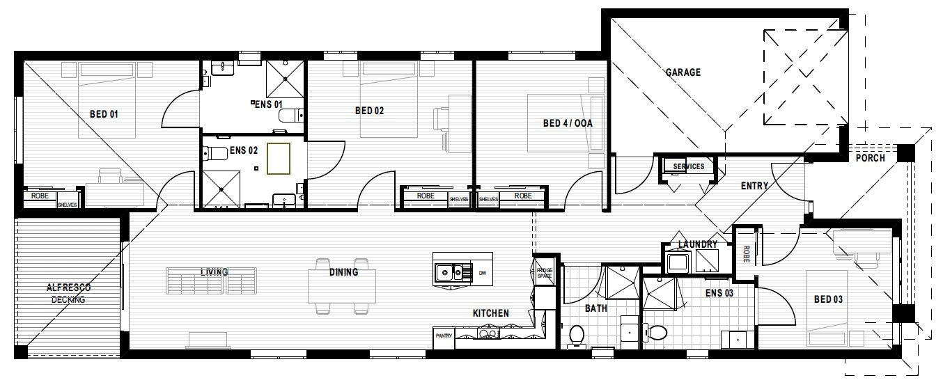
3 bed

3 bath

-3 parking
space

Discover a stunning new home designed for comfort and accessibility at 830 Trudeau Rd, Melton, VIC 3330. Perfectly suited for two participants requiring Improved Livability features, this spacious residence offers:

Up to Three private ensuites: Each participant enjoys their own private bathroom for maximum comfort and privacy.

Carer's suite with ensuite: Dedicated space for a live-in carer to ensure 24/7 support.

Open plan living: Seamless, modern living space ideal for relaxation and socializing.

Alfresco area: Enjoy the outdoors with a beautiful alfresco area perfect for leisure and gatherings.

This home is ready for immediate occupancy, providing a perfect blend of independence and support in a vibrant community. Contact us today to arrange a viewing and secure your new home!

Interested in this property?
Here are your options

Ready to apply? Share your details with the provider

Need more detail? Ask the property provider a question

Register to favourite

Property Features

The building
Single storey
Access
Wide doorframes Wide pathways
Environment
Air conditioning Heating
Outside
Secure backyard Garden Outdoor living/entertainment area Undercover access from parking to property
Shared Living
Storage for personal equipment Window Private/ensuite bathroom Shared living space Shared kitchen Shared laundry Pet friendly
Registered SDA: Yes
SDA Category: Improved Liveability
Stay Duration Permanent
Medium term

Provider Details

SDA Provider: Homelander

Application Criteria

$68,658 per annum No MRRC

What's nearby

Shopping Exford Waters

Area Map

Interested in this property?
Here are your options

Ready to apply? Share your details with the provider

Need more detail? Ask the property provider a question

Register to favourite