Skip to content

Content

SIL Accommodation in Emu Plains

Emu Plains NSW 2750

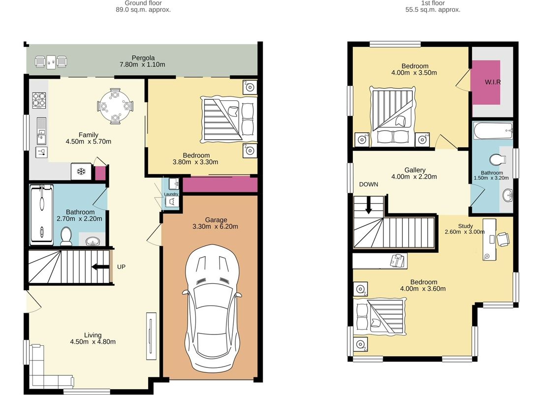
3 bed

3 bath

1 parking
space

Nestled amidst the tranquillity of Emu Plains, where the Greater Blue Mountains is just moments away, lies your new haven. Tucked away in a beautiful complex, our double-storey townhouse welcomes you with open arms for your new place to call home. Enjoy peace of mind knowing our experienced support staff are on-site to provide services tailored to you and to ensure you have the freedom to live life your way.

Interested in this property?
Here are your options

Ready to apply? Share your details with the provider

Need more detail? Ask the property provider a question

Register to favourite

Property Features

The building
Two storey
Access
Stair access Ramp access Wide doorframes
Environment
Air conditioning Heating
Outside
Secure backyard Garden Deck/verandah Outdoor living/entertainment area Undercover access from parking to property
Shared Living
Storage for personal equipment Window Built-in robe Private/ensuite bathroom Shared bathroom Shared living space Shared kitchen Shared laundry Pet friendly
Registered SDA: No
Stay Duration Permanent
Medium term
Short term

Provider Details

Application Criteria

- Beautiful low maintenance, sunlit courtyard

- 3 well-appointed bedrooms with 1 room being downstairs with built in wardrobes

- Study nook or seating area

- Ducted air conditioning and bedroom fans

- A spacious modern kitchen with ample storage and stainless steel appliances

- Close to public transport, local amenities, and shopping centres

Area Map

Interested in this property?
Here are your options

Ready to apply? Share your details with the provider

Need more detail? Ask the property provider a question

Register to favourite