Skip to content

Content

2 SDA (Improved Liv.) + Guest Room or OOA

Gleneagle QLD 4285

3 bed

2 bath

0 parking
space

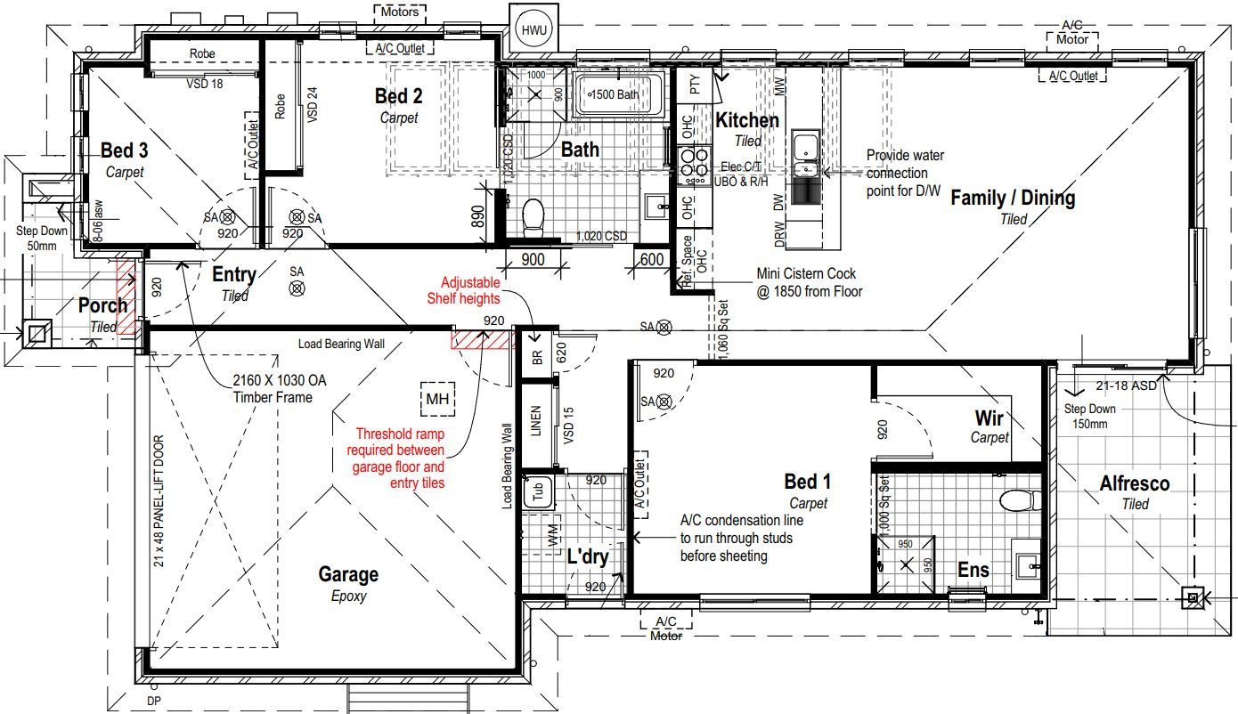
This SDA home is fully NDIS certified and compliant to meet the most up to date SDA guidelines.

Equipped with a modern interior, including the following features:

• 2 SDA bedrooms (Improved Liveability), with ensuites and SDA accessibility options, split system air conditioning and capacity for ceiling hoists if required.

• Guest bedroom family, friends or OOA (onsite overnight support)

• TV in each room

• Modern kitchen with:

o a height-adjustable bench top,

o dish drawer dishwasher,

o Caesarstone benchtops,

o strip lighting to the overhead cupboards

o bright lighting, filled with natural light

• Large living room

• Spacious Dining room

• Separate laundry, with washer and dryer provided.

Contact Michael Knights on 0409 018 778 / michael@horizonpropertyalliance.com.au or Kylie Peirce on 0493 028 591 / k.peirce@horizonsdacare.com.au. for more information.

Interested in this property?
Here are your options

Ready to apply? Share your details with the provider

Need more detail? Ask the property provider a question

Register to favourite

Property Features

The building
Single storey
Access
Wide doorframes
Environment
Air conditioning
Outside
Secure backyard Outdoor living/entertainment area Undercover access from parking to property
Shared Living
Storage for personal equipment Window Built-in robe Private/ensuite bathroom Shared bathroom Shared living space Shared kitchen Shared laundry Pet friendly
Registered SDA: Yes
SDA Category: Improved Liveability
Fully Accessible
Stay Duration Permanent
Medium term
Short term

Provider Details

SDA Provider: Horizon SDA Care

Area Map

Interested in this property?
Here are your options

Ready to apply? Share your details with the provider

Need more detail? Ask the property provider a question

Register to favourite