Skip to content

Content

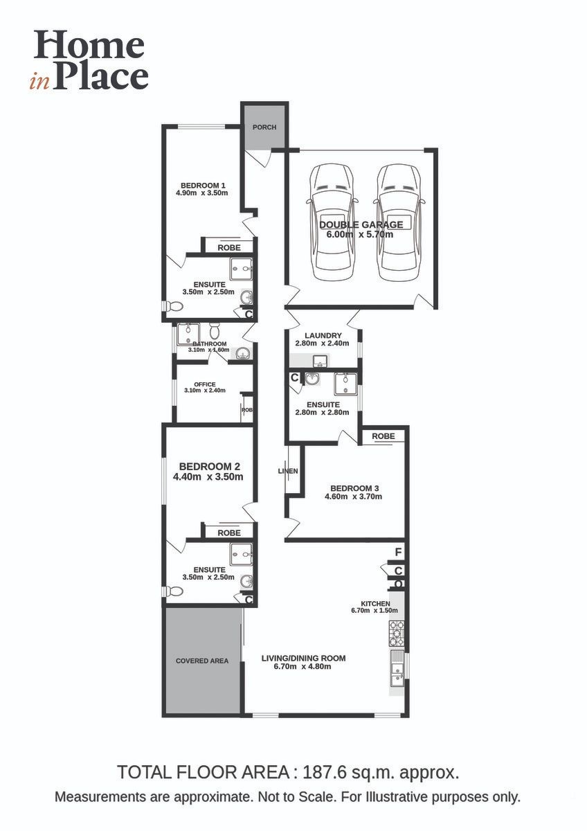
One vacancy at 3-bedroom High Physical Support house in CESSNOCK NSW!

Cessnock NSW 2325

3 bed

4 bath

2 parking
spaces

Cessnock is located in the heart of the Hunter Valley wine region, with beautiful surrounding gardens.

Your new High Physical Support Home is available NOW!

This home is a purpose built modern home with generous sized bedrooms and ensuites for each room.

Enjoy the open plan living and the beautiful lush green view from your covered patio.

24/7 supports available to foster your independent living.

Interested in this property?
Here are your options

Ready to apply? Share your details with the provider

Need more detail? Ask the property provider a question

Register to favourite

Property Features

The building
Single storey
Access
Ceiling hoist Wide doorframes Wide pathways
Environment
Air conditioning Heating
Outside
Secure backyard Outdoor living/entertainment area Undercover access from parking to property
Shared Living
Storage for personal equipment Window Built-in robe Private/ensuite bathroom Shared living space Shared kitchen
Registered SDA: Yes
SDA Category: High Physical Support
Stay Duration Permanent

Provider Details

SDA Provider: Home in Place SIL Provider: Inca Home Services

Area Map

Interested in this property?
Here are your options

Ready to apply? Share your details with the provider

Need more detail? Ask the property provider a question

Register to favourite