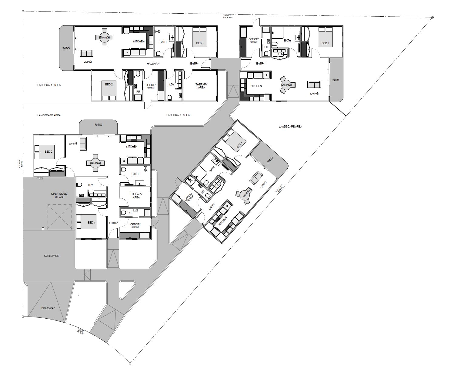
A home to enable. We’re creating a beautiful living environment matched with assistive technology capabilities and innovation in its build. Providing two separate living spaces and Support Worker accommodation and office. This home presents contemporary living at its finest.
Like nothing before, this home has been purposely designed with the residents in mind. Offering functionality, accessibility and durability, making this stylish home live up to rigorous quality and safety standards and provides an ongoing quality living space.
Located in an established community setting, this home brings hand-picked, curated interiors and colour palettes, fixtures and finishes with an emphasis on design coupled with a calm, luxury feel.
This home will serve NDIS Participants with SDA at Robust or Improved Liveability.
Interested in this property? Here are your options
Ready to apply? Share your details with the provider
Need more detail? Ask the property provider a question
Air conditioningCompatible to Environmental Control Units (ECU)Heating
Outside
Secure backyardRaised garden bedGardenDeck/verandahOutdoor living/entertainment areaUndercover access from parking to property
Shared Living
Storage for personal equipmentWindowBuilt-in robeDirect access to yard / courtyard / gardenShared bathroomShared living spaceShared kitchenShared laundry
Participant must be SDA eligible and have SDA in their NDIS Plan in one of the following SDA design categories:
Robust or Improved Liveability
What's nearby
TransportRoutes 1, 2, 3 and 8 provides access in and around Warrnambool – with routes to and from Dennington, Allansford and Warrnambool Town Centre. Trains from Warrambool will take you to Geelong and Melbourne.
ShoppingWarrnambool Central is located 2 km away which is home to Aldi, Woolworths, Coles and Supa IGA. There you will find many more speciality stores including fashion, food, health and beauty and fresh food. Northpoint Shopping Mall is also 2km away which provides Coles, a pharmacy and some eateries.
OtherThe area is well serviced with public hospitals. These include St John of God Warrnambool Private Hospital and South West Healthcare. These are supported by over 50 specialist medical services – including general practices, physiotherapists, speech pathologists, occupational therapists and the Icon Cancer Centre.
Interested in this property? Here are your options
Ready to apply? Share your details with the provider
Need more detail? Ask the property provider a question
Our match score indicates how closely 'matched' you are to this property. The longer the line; the better you are matched with the property with regards to your preferences and funding.
Our match score indicates how closely 'matched' this applicant is to your property. The longer the line; the better they are matched with regards to their preferences and funding.
1429 current rooms in Queensland.
Login to find your Nest
Reset your password
Sign up for Nest in seconds
Why are you signing up?
Register to apply for:A Beautiful 2 Bedroom House in Warrnambool, Warrnambool VIC 3280
When you click 'Register & Apply', your profile details will be shared with the accommodation provider. They'll assess how suited you are to the room and contact you to discuss your application.
Your application has been submitted.
The accommodation provider will be in touch to let you know the outcome of your application.