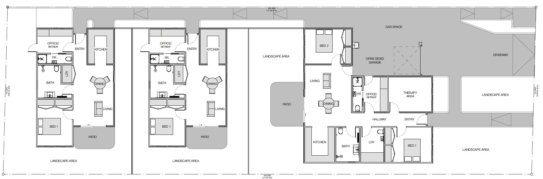
A home to enable. We’re creating a beautiful living environment matched with assistive technology capabilities and innovation in its build. Providing adaptable open plan living space and individual support worker accommodation and office. This home presents a contemporary living at its finest.
Like nothing before, this home has been purposely designed with the residents in mind. Offering functionality, accessibility and durability, making this stylish home live up to rigorous quality and safety standards and provides an ongoing quality living space.
Located in an established community setting, this home brings hand-picked, curated interiors and colour palettes, fixtures and finishes with an emphasis on design coupled with a calm, luxury feel.
This home will serve NDIS Participants with SDA at Improved Liveability and Robust.
Live the life you want.
Interested in this property? Here are your options
Ready to apply? Share your details with the provider
Need more detail? Ask the property provider a question
Air conditioningCompatible to Environmental Control Units (ECU)Heating
Outside
Secure backyardRaised garden bedGardenDeck/verandahOutdoor living/entertainment areaUndercover access from parking to property
Shared Living
Storage for personal equipmentWindowBuilt-in robeDirect access to yard / courtyard / gardenPrivate/ensuite bathroomPrivate living spacePrivate kitchenPrivate laundryPet friendly
Registered SDA:Yes
SDA Category:
Robust
Stay Duration
Permanent
Provider Details
SDA Provider: Casa Capace
SIL Provider:
Gateways Support Services
Application Criteria
Participant must be SDA eligible and have SDA in their NDIS Plan in one of the following SDA design categories:
Improved Liveability or Robust
What's nearby
TransportBus Route 24 provides you access to the local suburbs of Rippleside, North Geelong, Bell Park, Manifold Heights, Newtown and Geelong. Geelong also provides trains to Melbourne and Warrnambool.
ShoppingLocated a short distance away within Hamlyn Heights you will find a mini mart and a butchers. The closest supermarkets are in the next suburb of Bell Post Hill where you will find an Aldi and a local IGA. 10 minutes drive away in Geelong, Market Square and Westfield shopping centres will provide many more speciality stores including fashion, food, health and beauty and fresh food.
OtherThe area is well serviced with public hospitals. These include University Hospital Geelong, St John of God Hospital, Barwon Healthand, Epworth Geelong Private Hospital and St John of God Private Hospital, which are all located within 6km’s. These are supported by over 50 specialist medical services – including general practices, physiotherapists, speech pathologists and occupational therapists.
Interested in this property? Here are your options
Ready to apply? Share your details with the provider
Need more detail? Ask the property provider a question
Our match score indicates how closely 'matched' you are to this property. The longer the line; the better you are matched with the property with regards to your preferences and funding.
Our match score indicates how closely 'matched' this applicant is to your property. The longer the line; the better they are matched with regards to their preferences and funding.
44 listed properties in the ACT.
Login to find your Nest
Reset your password
Sign up for Nest in seconds
Why are you signing up?
Register to apply for:A Beautiful 1 Bedroom Villa in Hamlyn Heights, Hamlyn Heights VIC 3215
When you click 'Register & Apply', your profile details will be shared with the accommodation provider. They'll assess how suited you are to the room and contact you to discuss your application.
Your application has been submitted.
The accommodation provider will be in touch to let you know the outcome of your application.