Skip to content

Content

Architectually Designed home with one vacancy

Frankston VIC 3199

4 bed

2 bath

2 parking
spaces

Your home is where you are supported to live a healthy life; inside and out.It’s where you connect with your friends and family.

Helvetia is an architecturally designed property, owned and managed by focus Individualised Support Services.

Suitable for people who require some support to undertake the activities of daily living. Helvetia is large and airy, with 2 separate living areas offering housemates plenty of space to relax.

4 large bedrooms with B.I.R.’s, split system heating/cooling

2 separate living areas

Open Plan kitchen which includes height adjustable bench and overhead cupboard, and a large walk in pantry with open shelving.

Private outdoor courtyard.

Large outdoor deck.

Hydronic heating

Split system air conditioning

Assisted bathroom

Ambulant bathroom

Powder room

Walking distance to public transport, shops and restaurants.

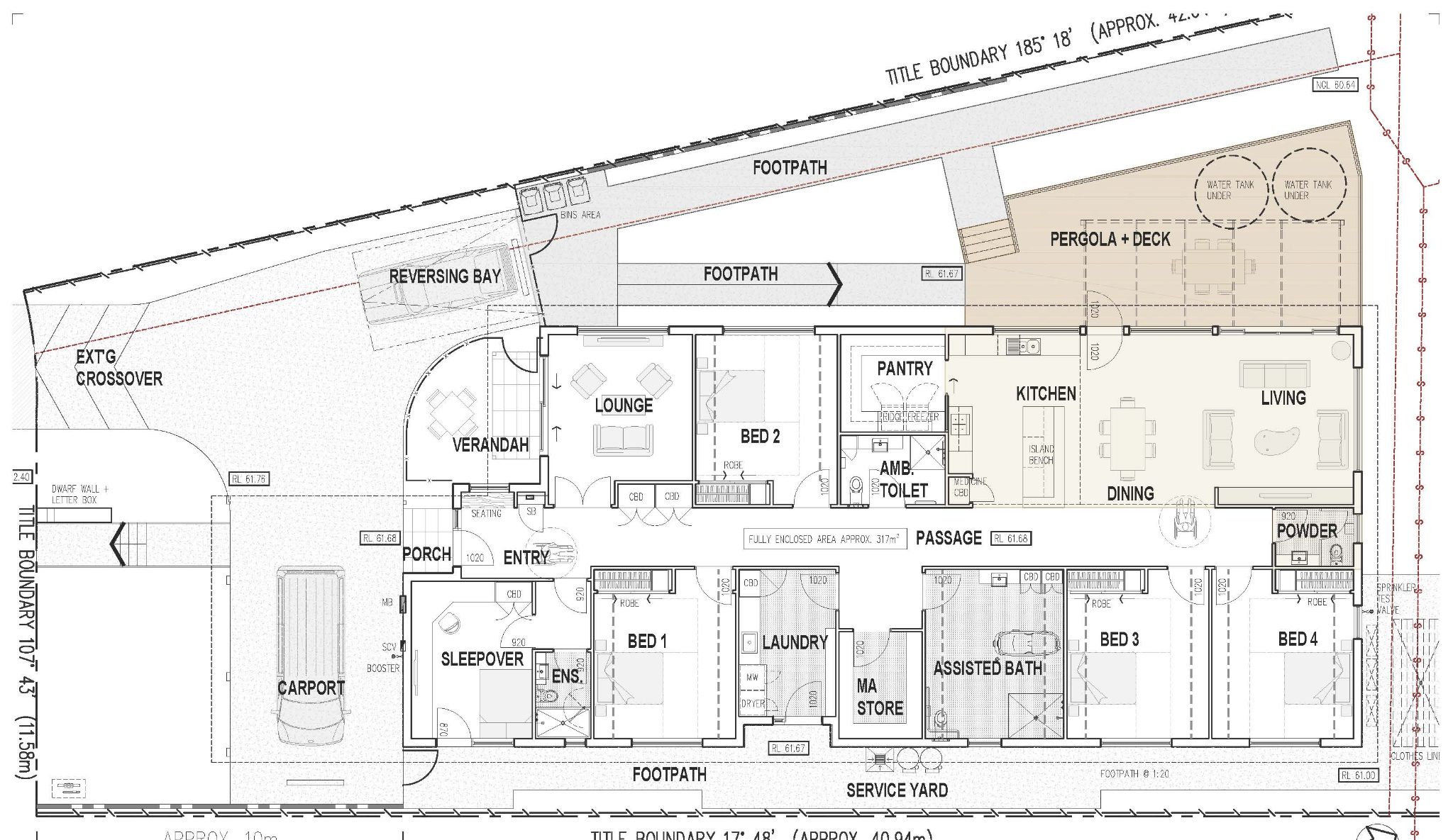
Please see floor plan for further details.

Conveniently located within walking distance to public transport, shops and restaurants.

Minutes from chemist, local hospital and other allied health services.

focus has been in the business of providing supportive homes for people for over fifty years.

It all begins with getting to know you. When you tell us your goals and how you would like us to support you, together we can start planning how to make it happen.

Home is where your family are welcomed and encouraged to drop in and get involved in your life in any way you want them to.

Home is where you are supported to build your independence. It’s where you connect with your friends and family.

Get in touch. We’d like to meet you.

Interested in this property?
Here are your options

Ready to apply? Share your details with the provider

Need more detail? Ask the property provider a question

Register to favourite

Property Features

The building
Single storey
Access
Wide doorframes Wide pathways
Environment
Air conditioning Heating
Outside
Secure backyard Secure frontyard Garden Deck/verandah Outdoor living/entertainment area Undercover access from parking to property
Shared Living
Storage for personal equipment Built-in robe Shared bathroom Shared living space Shared kitchen Shared laundry
Registered SDA: Yes
SDA Category: Fully Accessible
Stay Duration Permanent

Provider Details

SDA Provider: focus Individualised Support Services SIL Provider: focus Individualised Support Services

What's nearby

Transport Bus stops within minutes of home.
Shopping Bayside Shopping Centre and Towerhill Road Shopping Centre
Other Restaurants
Delacombe Park
Frankston hospital 5 minute drive
Chemist walking distance

Area Map

Interested in this property?
Here are your options

Ready to apply? Share your details with the provider

Need more detail? Ask the property provider a question

Register to favourite