Skip to content

Content

Modern Two Bedroom + OOA SDA in Peaceful Edmonton

Edmonton QLD 4869

3 bed

4 bath

2 parking
spaces

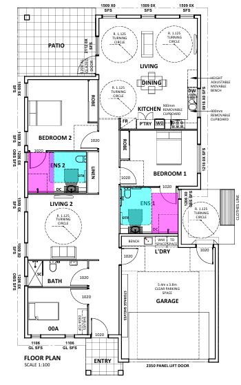
This thoughtfully designed Specialist Disability Accommodation (SDA) home in Edmonton offers high physical support, fully accessible, and improved liveability features, ensuring comfort, independence, and safety. With the whole home available, this home is perfect for individuals or familes looking for a welcoming and adaptable living space with the freedom to bring their own Supports.

Home Features:

✅ Two high physical support bedrooms, each with a private accessible ensuite and built-in storage.

✅ Spacious open-plan kitchen, dining, and living areas, creating a bright and welcoming environment.

✅ Step-free access, widened doorways, and smart design features for enhanced mobility and independence.

✅ Spacious outdoor alfresco area, offering fresh air and relaxation.

✅ Secure and quiet location in Edmonton, with convenient access to local amenities.

✅ Choice and control – bring your own SIL provider for personalized support.

At Everhomes, we provide SDA housing that prioritizes independence, security, and comfort, giving residents the freedom to live life on their own terms.

Find out if this home is the right fit for you- contact us for more details!

Interested in this property?
Here are your options

Ready to apply? Share your details with the provider

Need more detail? Ask the property provider a question

Register to favourite

Property Features

The building
Single storey
Access
Ramp access Wide doorframes Wide pathways
Environment
Air conditioning Heating
Outside
Secure backyard Garden Outdoor living/entertainment area Undercover access from parking to property
Shared Living
Window Built-in robe Private/ensuite bathroom Shared living space Shared kitchen Shared laundry Pet friendly
Registered SDA: Yes
SDA Category: Improved Liveability
Fully Accessible
High Physical Support
Stay Duration Permanent
Medium term

Provider Details

SDA Provider: Everhomes Pty Ltd

What's nearby

Shopping 4 Minutes to Edmonton Shopping Centre
Other 6 Minutes to Isabella Falls
6 Minutes to Edmonton Family Medical Clinic
20 Minutes to Cairns Hospital

Area Map

Interested in this property?
Here are your options

Ready to apply? Share your details with the provider

Need more detail? Ask the property provider a question

Register to favourite