Skip to content

Content

Northern Beaches- Cockatoo Home

Narraweena NSW 2099

3 bed

1 bath

2 parking
spaces

Sunnyfield, in collaboration with Edenbridge Living, is proud to present an innovative Specialist Disability Accommodation (SDA) in Narraweena, Northern Beaches. Designed with the specific needs of individuals with disabilities in mind, this thoughtfully crafted home offers the perfect blend of privacy, social inclusion, and tailored on-site support.

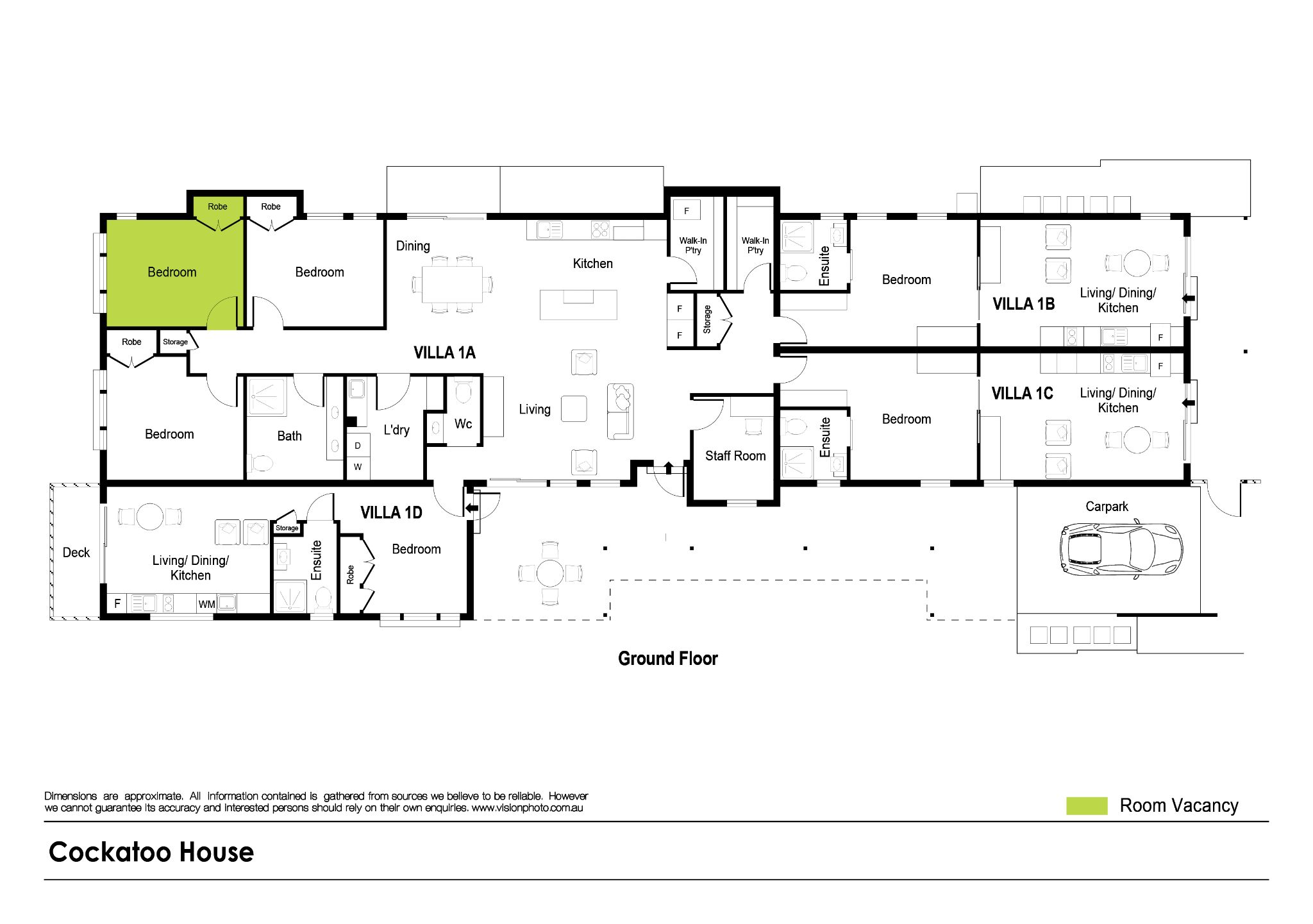
The home includes architecturally designed private villas and three bedrooms, offering residents the opportunity to personalise their living spaces. Cockatoo home currently has one bedroom available in the shared house, providing an immediate opportunity for a new resident. The property contains 3 bedrooms and two villas and the house and living spaces are available for social connections among residents, while accommodating a range of needs and preferences.

Ideally situated near Warringah Mall, stunning beaches, local parks, and vibrant local cafes, this exceptional property combines a strong sense of community with a lifestyle of convenience and ease.

Some images may have been virtually styled or enhanced for illustrative purposes only.

Interested in this property?
Here are your options

Ready to apply? Share your details with the provider

Need more detail? Ask the property provider a question

Register to favourite

Property Features

The building
Single storey
Access
Ramp access Wide doorframes Wide pathways
Environment
Air conditioning Heating
Outside
Outdoor living/entertainment area
Shared Living
Storage for personal equipment Window Built-in robe Direct access to yard / courtyard / garden Shared bathroom Shared living space Shared kitchen Shared laundry
Registered SDA: Yes
SDA Category: Improved Liveability
Fully Accessible
Robust
High Physical Support
Stay Duration Permanent

Provider Details

SDA Provider: Edenbridge Living SIL Provider: Sunnyfield is pleased to offer in-home supports in this brand new SDA by Edenbridge Living.

What's nearby

Local terrain Local Beaches - 5 minute drive
Transport 2 minute stroll to the closest bus stop
Shopping 5 minute drive to Warringah Mall

Area Map

Interested in this property?
Here are your options

Ready to apply? Share your details with the provider

Need more detail? Ask the property provider a question

Register to favourite