Skip to content

Content

SDA HPS 2 Bedroom House plus OOATarneit, Vic | 230

Tarneit VIC 3029

2 bed

2 bath

1 parking
space

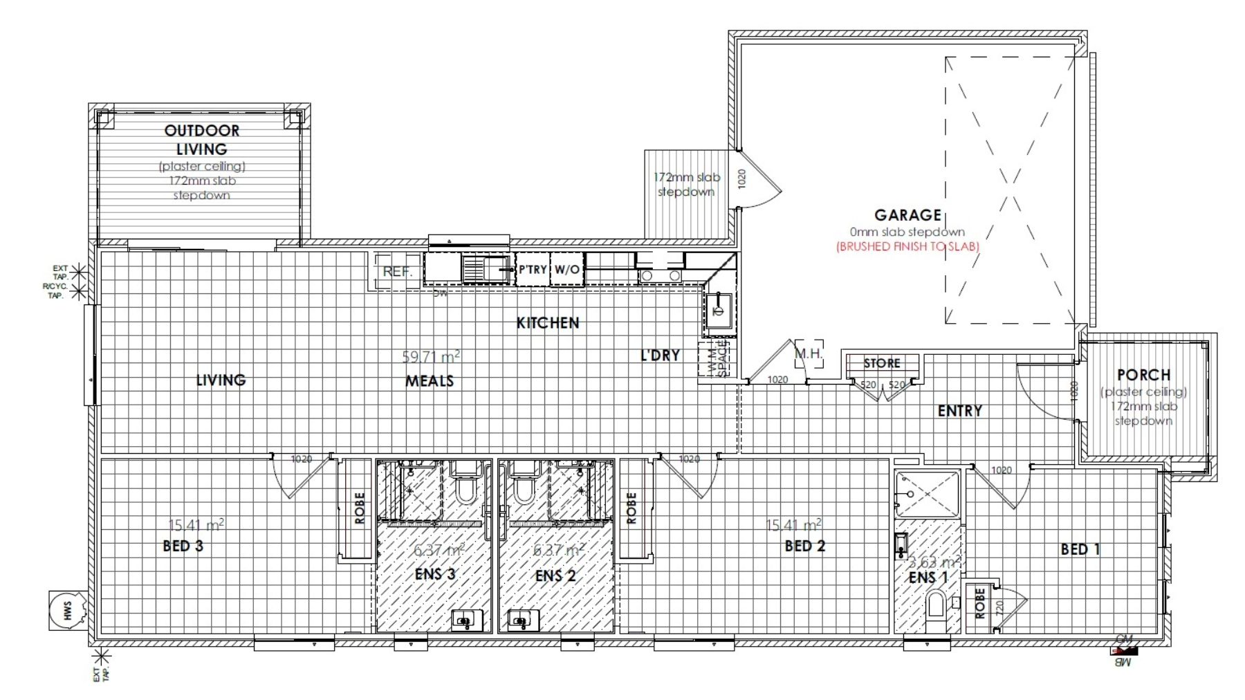
A brand-new opportunity has arrived in Tarneit, and it's built to support your lifestyle in every way. This High Physical Support home combines modern design with purposeful functionality, making daily living easier and more empowering. Whether it’s comfort, independence, or community you’re afterβ€”this place has it all. Get ready to feel right at home!

🏠 Property Features

πŸ›οΈ Bedrooms: 2 – Comfortable spaces for rest and relaxation.

πŸ› Bathrooms: 2 – Two modern bathrooms for everyday convenience.

πŸ‘©β€βš•οΈ OOA (Onsite Overnight Assistance): Yes - Separate room and bathroom for the use of the SIL provider

πŸš— Car Garage: 1 – Secure single-car parking space.

🌬️ Heating and Cooling System – Climate control for year-round comfort.

πŸ”₯ Fire Sprinklers – Built-in fire safety for added protection.

🐾 Pets Allowed – Your furry companions are welcome here!

🌿 Outdoor Area – A great space to relax or entertain outside.

Love a move-in ready home?

This property can be furnished with a long-term lease – just bring your suitcase and settle in! πŸ›‹οΈβœ¨

Contact us today to schedule a tour!

Interested in this property?
Here are your options

Ready to apply? Share your details with the provider

Need more detail? Ask the property provider a question

Register to favourite

Property Features

The building
Single storey
Access
Wide pathways
Outside
Outdoor living/entertainment area
Shared Living
Private/ensuite bathroom Shared living space Shared kitchen Pet friendly
Registered SDA: Yes
SDA Category: High Physical Support
Stay Duration Permanent

What's nearby

Transport 5.4km from train station
4.9km from bus stop
Shopping 3.2km from shopping centre
Other 4.2km from medical centre
10.9km from hospital

Area Map

Interested in this property?
Here are your options

Ready to apply? Share your details with the provider

Need more detail? Ask the property provider a question

Register to favourite