Skip to content

Content

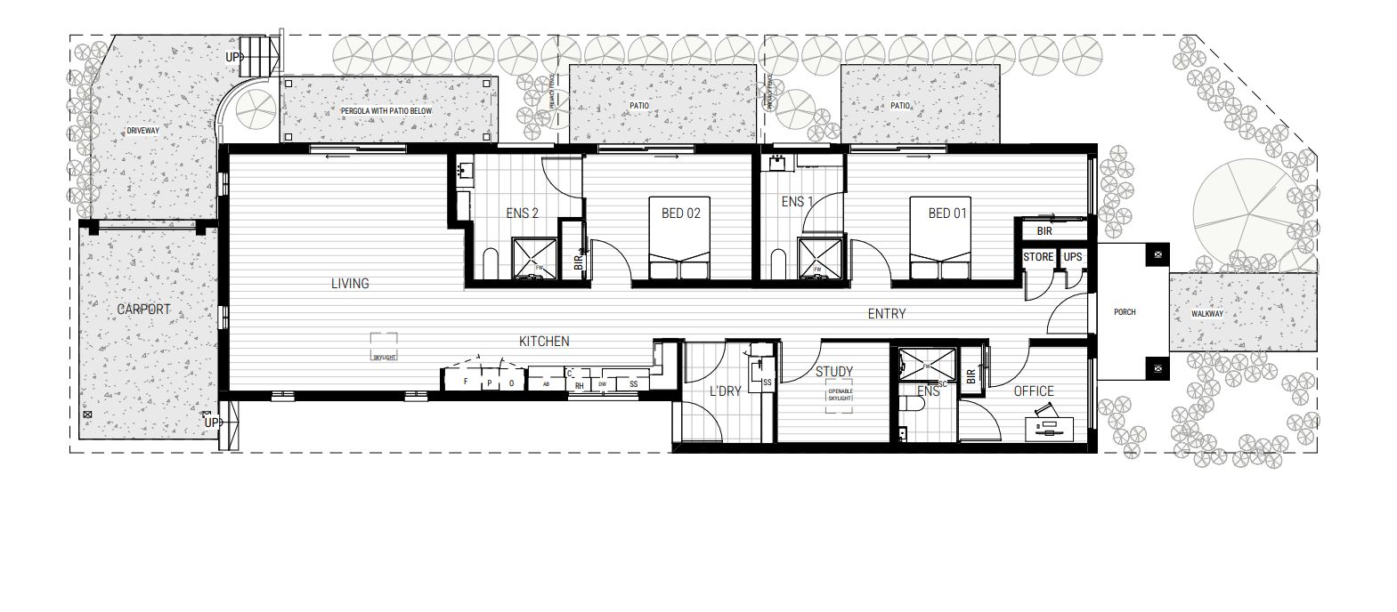
Frankston SDA house

Frankston VIC 3199

2 bed

2 bath

1 parking
space

This SDA property is High Physical Support (HPS) However, Fully Accessible (FA) Improved Livability (IL) can be considered

Improved Livability (IL) | Fully Accessible (FA) |High Physical Support (HPS)SDA approved in NDIS Plan.

Kind & Care Supports has access to a range of housing options for adults and children with complex needs.

Interested in this property?
Here are your options

Ready to apply? Share your details with the provider

Need more detail? Ask the property provider a question

Register to favourite

Property Features

The building
Single storey
Access
Ceiling hoist Wide doorframes Wide pathways
Environment
Air conditioning Compatible to Environmental Control Units (ECU) Heating
Outside
Secure backyard Secure frontyard Raised garden bed Garden Deck/verandah Outdoor living/entertainment area Undercover access from parking to property
Shared Living
Storage for personal equipment Window Built-in robe Direct access to yard / courtyard / garden Private/ensuite bathroom Shared living space Shared kitchen Shared laundry Pet friendly
Registered SDA: Yes
SDA Category: Improved Liveability
Fully Accessible
High Physical Support
Stay Duration Permanent

Provider Details

SDA Provider: Yes SIL Provider: Yes

Application Criteria

To be eligible for this beautiful SDA property, you must have Core Supports funding and/or Supported Independent Living (SIL) funding included in your NDIS plan.

What's nearby

Area Map

Interested in this property?
Here are your options

Ready to apply? Share your details with the provider

Need more detail? Ask the property provider a question

Register to favourite