Skip to content

Content

2 Bedroom home with OOA in Narangba, Queensland

Narangba QLD 4504

2 bed

2 bath

2 parking
spaces

NOW AVAILABLE for High Physical Support, Fully Accessible and Improved Livability tenants

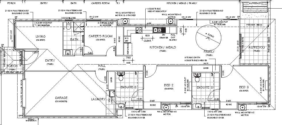
2 bedroom home, 2 bathrooms, 2 car garage, High Physical Support home + carer studio in Narangba, Queensland

This home is in a great location with easy access to shops and medical services.

Why choose an SDA Smart Home? Our stylish homes are designed for independence, safety and accessibility with high quality finishes and fittings and automation throughout.

Key features include:

* iSaint Assistive Technology package with tablet in common area and Alexa Echo dot in each bedroom for automated lights, air conditioning, front door and blinds and smart power points for automation of any applianceĀ 

* Accessible bathrooms with hobless shower, pedestal sink and wall reinforcement for handrails

* Accessible kitchen with room for wheelchair under bench, adjustable height benchtop and side opening oven

* Emergency backup power

* Large bedrooms, wide hallways and clear doorways

* Large garage and spacious undercover entry

* Easy circulation space in living, kitchen, bedrooms, bathrooms and outdoor area

* A/C and fans in bedrooms and living room

* Non-slip flooring with OOA

* Quality stainless kitchen appliances

* Structural provision for ceiling hoists to bedrooms & ensuites

* Security screens to windows

__

Inclusions are subject to change without notice due to design requirements that are outside of the control of SDA Smart Homes. All information is accurate at the time of publication. Images indicative only.

Interested in this property?
Here are your options

Ready to apply? Share your details with the provider

Need more detail? Ask the property provider a question

Register to favourite

Property Features

The building
Single storey
Access
Wide doorframes Wide pathways
Environment
Air conditioning Compatible to Environmental Control Units (ECU) Heating
Outside
Secure backyard Garden Outdoor living/entertainment area Undercover access from parking to property
Shared Living
Storage for personal equipment Window Built-in robe Direct access to yard / courtyard / garden Private/ensuite bathroom Shared living space Shared kitchen Shared laundry
Registered SDA: Yes
SDA Category: Improved Liveability
Fully Accessible
High Physical Support
Stay Duration Permanent
Medium term

Provider Details

SDA Provider: The Disability Housing Centre SIL Provider: Focused on Care

Application Criteria

Tenants must have SDA funding to be eligible and will be required to pay $250 p.w. (25% of disability pension + Commonwealth Rent Assistance).

Inclusions are subject to change without notice due to design requirements that are outside of the control of SDA Smart Homes. All information is accurate at the time of publication. Images indicative only.

What's nearby

Area Map

Interested in this property?
Here are your options

Ready to apply? Share your details with the provider

Need more detail? Ask the property provider a question

Register to favourite