Skip to content

Content

A 'Sanctum' Residence in Townsville's Flourishing Northern Beaches: IL-HPS-FA

Mount Low QLD 4818

4 bed

4 bath

2 parking
spaces

Taking Expressions of interest for your new ForEverhome! Available Towards the End of 2022!

Everhomes SDA is proud to present a beautiful home in Sanctum Estate, Townsville.

Located just 20 minutes north of the Townsville CBD and Townsville Airport, Sanctum is positioned in the heart of this bustling metropolitan’s growth area – The Northern Beaches. Sanctum is also a short fifteen-minute drive from the Townsville Hospital, James Cook University and Lavarack Barracks thanks to the recently completed Stage 4 Townsville Ring Road extension. This now links the Northern Beaches directly to the essential services and major employment hubs.

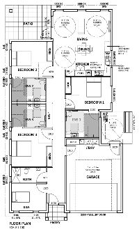
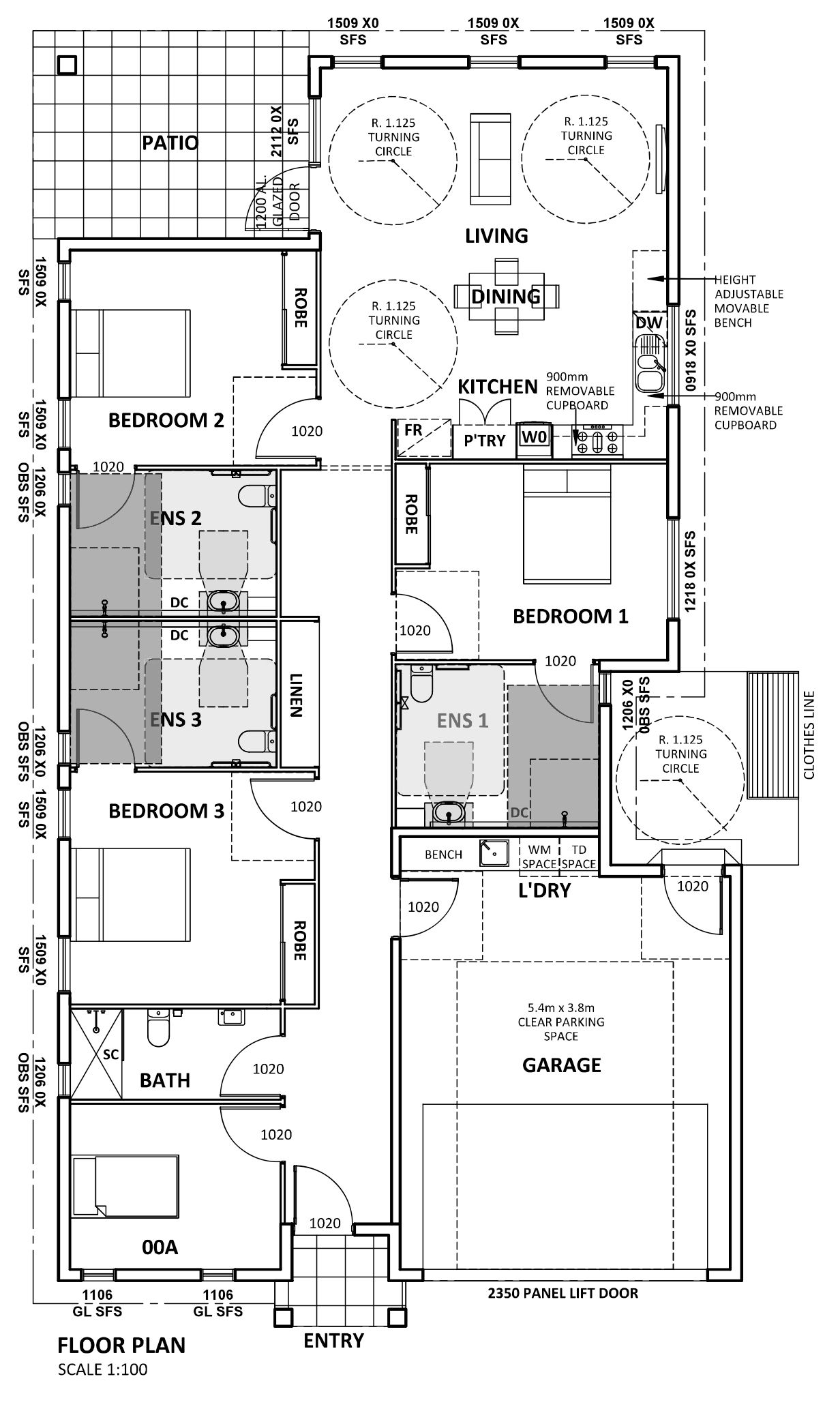
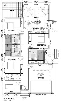
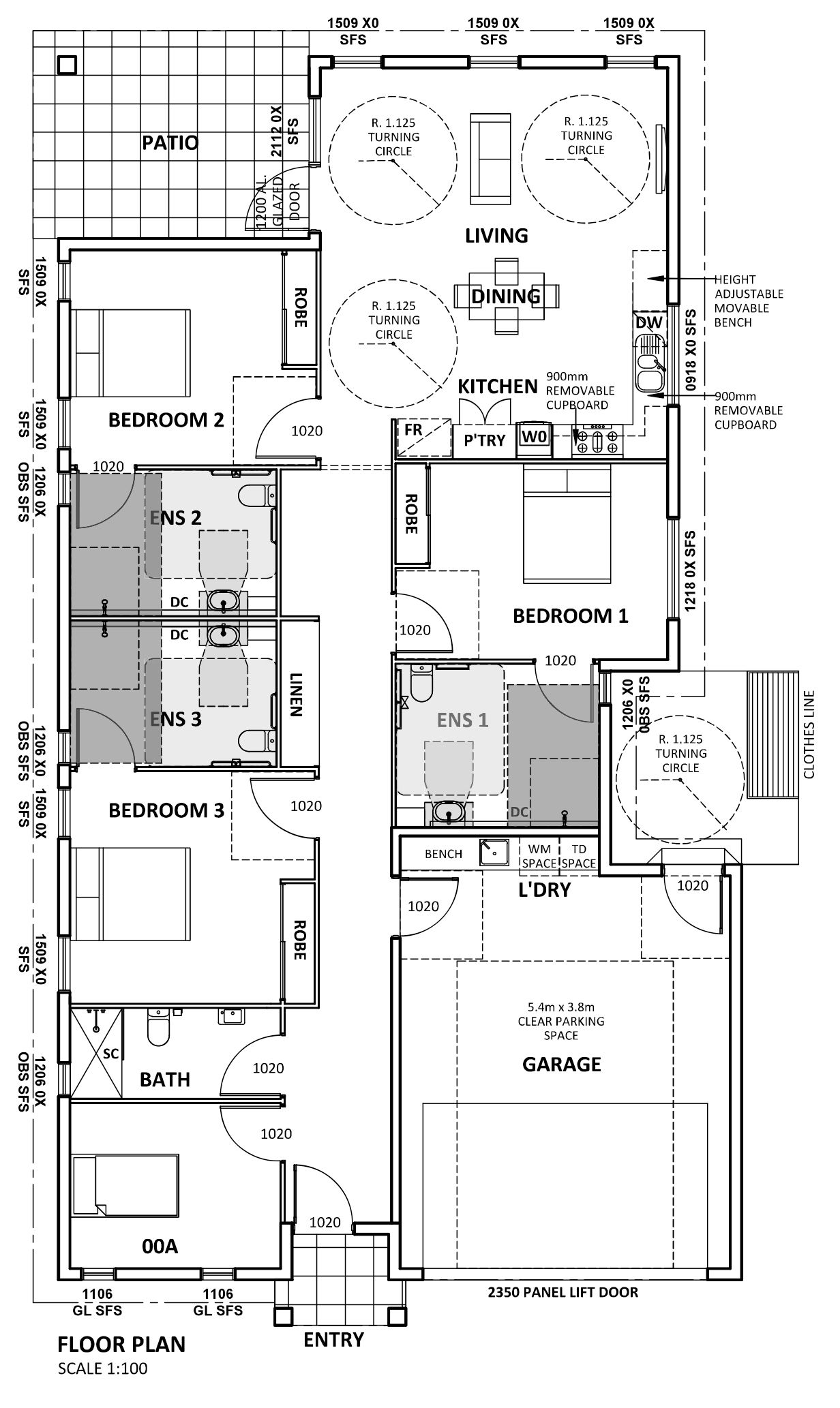
Built to Improved Liveability, High Physical Support and Fully Accessible design standards, Everhomes has taken every precaution to promote accessibility and autonomy in this home.

Maximum of three residents with 4th bedroom to accommodate SIL service provider.

As the SDA provider, Everhomes offers ongoing support from a team with significant experience in the disability sector. We understand the challenges to securing the right housing with compatible co-tenants and want to support you or your loved one to find a safe, stable and beautiful home.

Get in contact now!!

Interested in this property?
Here are your options

Ready to apply? Share your details with the provider

Need more detail? Ask the property provider a question

Register to favourite

Property Features

The building
Single storey
Access
Ramp access Wide doorframes Wide pathways
Environment
Air conditioning Heating
Outside
Secure backyard Raised garden bed Garden Outdoor living/entertainment area Undercover access from parking to property
Shared Living
Storage for personal equipment Window Direct access to yard / courtyard / garden Private/ensuite bathroom Shared living space Shared kitchen Shared laundry Pet friendly
Registered SDA: Yes
SDA Category: Improved Liveability
Fully Accessible
High Physical Support
Stay Duration Permanent
Medium term

Provider Details

SDA Provider: Everhomes Pty Ltd

What's nearby

Local terrain 515m to the nearest park at Sanctum Dog Park, Sanctum Boulevard, Mount Low QLD, Australia.
Transport 2km to the nearest train station at Kulburn, Brabon Road, Beach Holm QLD, Australia
1km to the nearest bus stop at Mount Low Parkway at Ellendale St, Mount Low QLD, Australia.
Shopping 3km to the nearest shopping centre at Woodlands Village Shopping Centre, Palm Drive, Deeragun QLD, Australia.
Other 15km to the nearest hospital at Mater Hospital Pimlico, Fulham Road, Pimlico QLD, Australia.
4km to the nearest medical practice (GP) at Northern Beaches GP Super Clinic, Deeragun Road, Deeragun QLD, Australia

Area Map

Interested in this property?
Here are your options

Ready to apply? Share your details with the provider

Need more detail? Ask the property provider a question

Register to favourite