Skip to content

Content

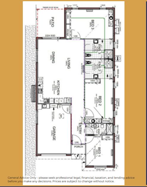
High Physical Support House, Bohle Plains, Townsville

Bohle Plains QLD 4817

2 bed

2 bath

1 parking
space

This modern new build located in Bohle’s Plain is looking for participants with High Physical Support approval to live in this wonderful location. The property has 2 high physical support bedrooms with a 3rd bedroom for OOA, and each bedroom has an en-suite to provide participants privacy and independence. You will be surrounded by brand new, quality-built homes that are close to open fields and only a short drive to shopping, allied health specialists.

ADAPT Housing are seeking Expressions of Interest from SDA participants with High Physical Support in their NDIS plan. This could also include participants with SDA or seeking SDA as a key goal. Contact ADAPT Housing Pty Ltd on 1300 223278 or email ADAPT Housing on info@adapthousing.com.au to learn more about this new Specialist Disability Accommodation house.

Interested in this property?
Here are your options

Ready to apply? Share your details with the provider

Need more detail? Ask the property provider a question

Register to favourite

Property Features

The building
Single storey
Access
Wide doorframes Wide pathways
Environment
Air conditioning Compatible to Environmental Control Units (ECU) Heating
Outside
Outdoor living/entertainment area
Shared Living
Storage for personal equipment Built-in robe Private/ensuite bathroom Shared living space Shared kitchen Shared laundry
Registered SDA: Yes
SDA Category: High Physical Support
Stay Duration Permanent
Medium term

Provider Details

SDA Provider: ADAPT Housing

Area Map

Interested in this property?
Here are your options

Ready to apply? Share your details with the provider

Need more detail? Ask the property provider a question

Register to favourite