Skip to content

Content

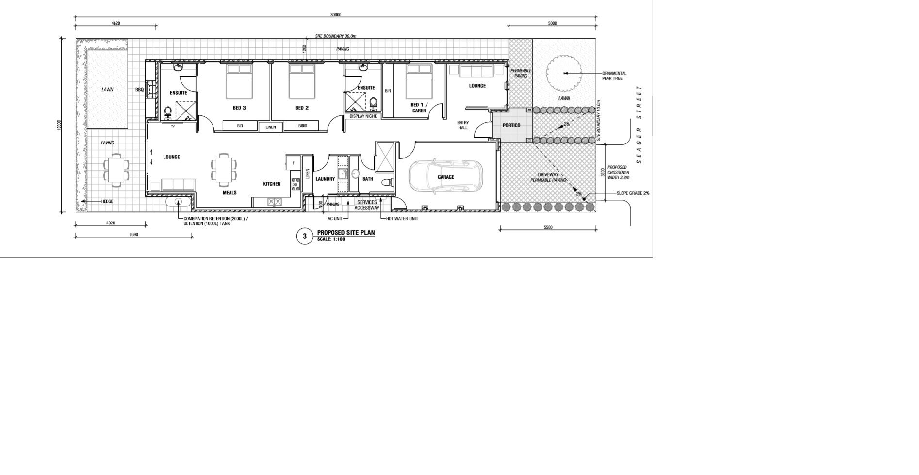
Brand New 3 bedroom house in Gillman Estate

Rosewater SA 5013

3 bed

3 bath

2 parking
spaces

Brand new High Physical Support or Fully Accessible Home for 2 residents + carer room in New Estate in Gillman.

Interested in this property?
Here are your options

Ready to apply? Share your details with the provider

Need more detail? Ask the property provider a question

Register to favourite

Property Features

The building
Single storey
Access
Automatic doors Ceiling hoist Wide pathways
Environment
Air conditioning Compatible to Environmental Control Units (ECU) Heating
Outside
Secure backyard Garden Outdoor living/entertainment area Undercover access from parking to property
Shared Living
Storage for personal equipment Window Built-in robe Private/ensuite bathroom Shared living space Shared kitchen Shared laundry Pet friendly
Registered SDA: Yes
SDA Category: Improved Liveability
Fully Accessible
High Physical Support
Stay Duration Permanent

Provider Details

SDA Provider: Synergy Housing Pty Ltd SIL Provider: A choice of providers available

Application Criteria

Maximum Reasonable Rent Contribution (MRRC) calculation outlined in the National Disability Insurance Scheme Pricing Arrangements for Specialist Disability Accommodation is applicable for this property.

What's nearby

Local terrain Local Parks and Amenities in close proximity to the property. The home is located within a brand new estate. Semaphore Beach is 11 mins by car (5.4kms)
Transport Major bus route and bus stop on Grand Junction Road nearby
Shopping Port Adelaide Centre Shopping facilities, cafes, government offices, library and entertaining facilities nearby (7 mins by car, distance 3kms)

Area Map

Interested in this property?
Here are your options

Ready to apply? Share your details with the provider

Need more detail? Ask the property provider a question

Register to favourite