Skip to content

Content

Spacious HPS Villas - Shared & Individual living options - Avail Oct 2021

Logan Central QLD 4114

3 bed

3 bath

2 parking
spaces

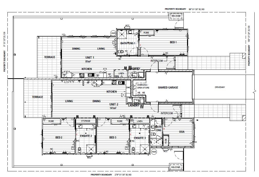
This spacious villa located in Logan Central is perfectly positioned to all amenities and offers both shared and individual living options. Built to High Physical Support design standards, including a separate room for onsite supports, you can be sure to enjoy everyday in this beautiful home.

Features Include:

-1 x 3BR (2 SDA participants) HPS Villa

-1 x 1BR (1 SDA participant) HPS Villa

-24/7 Onsite Overnight Supports

-Ensuite off each bathroom (including OOA room)

-Intercom system to entry

-Emergency back-up power

-Air-conditioning to living and all bedrooms

-Built-in robes

-200m to Logan Garden, green spaces and parks

-40m to bus stop

-400-600m to local community centres (Logan Entertainment centre, PCYC, Rugby league club, community church, Logan Art Gallery, tenpin bowling)

-1km to Logan central plaza and Logan City Centre (Coles, Kmart, Woolworths, ALDI and retail hub)

-1km to Logan Central Library

-1km to train station (Woodridge and Kingston)

Expected completion and available date is October, 2021

Applications from participants with high physical support or fully accessible SDA funding are welcome now. For enquiries on this property and to find out if it’s right for you, please call 1300 419 819 to discuss further.

Interested in this property?
Here are your options

Ready to apply? Share your details with the provider

Need more detail? Ask the property provider a question

Register to favourite

Property Features

The building
Single storey
Environment
Air conditioning Heating
Outside
Outdoor living/entertainment area
Shared Living
Window Built-in robe Private/ensuite bathroom Shared living space Shared kitchen Shared laundry
Registered SDA: Yes
SDA Category: High Physical Support
Stay Duration Permanent

Provider Details

What's nearby

Transport Train Station - 1km
Shopping Shopping - 1km

Area Map

Interested in this property?
Here are your options

Ready to apply? Share your details with the provider

Need more detail? Ask the property provider a question

Register to favourite