Skip to content

Content

Brand new HPS SDA in prime location close to shops and transport in Truganina

Truganina VIC 3029

3 bed

4 bath

2 parking
spaces

✨ Stunning SDA Property in Central Truganina

Designed to HPS (High Physical Support) standards, this property is suitable for HPS, FA, and IL participants.

📍 Prime Location

Just a 5-minute walk to Truganina Central Shopping Centre and Truganina Community Centre

Only a 2-minute walk to McDonald's

Convenient 5-minute drive to Tarneit Station for easy access to public transport

🏡 Property Features

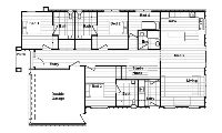
3 spacious rooms with ensuites and provision for hoist installation

Ample storage throughout, including charging space for wheelchairs.

Dedicated staff room for 24/7 care support

Uninterrupted power supply for emergency medical equipment

Broad, accessible hallways with nonslip flooring

Large living area and study nook for relaxation and socializing

Modern open-plan kitchen with adjustable benchtop

Common areas fully furnished with new furniture and the latest electrical appliances

Ramp access at all entry and exit points for ease of mobility.

🌟 Additional Highlight

Corner lot property with ample natural lighting throughout

Interested in this property?
Here are your options

Ready to apply? Share your details with the provider

Need more detail? Ask the property provider a question

Register to favourite

Property Features

The building
Single storey
Access
Ramp access Ceiling hoist Wide doorframes Wide pathways
Environment
Air conditioning Heating
Outside
Secure backyard Garden Undercover access from parking to property
Shared Living
Storage for personal equipment Window Built-in robe Private/ensuite bathroom Shared living space Shared kitchen Shared laundry Pet friendly
Registered SDA: Yes
SDA Category: Improved Liveability
Fully Accessible
High Physical Support
Stay Duration Permanent
Medium term

Provider Details

SDA Provider: Select Home Living

What's nearby

Transport Tarneit Station - 10 mins from home
Shopping Truganina Central Shopping Centre - 5 mins from home
Other Truganina Community Centre - 5 mins from home
McDonald's Truganina - 2 mins from home

Area Map

Interested in this property?
Here are your options

Ready to apply? Share your details with the provider

Need more detail? Ask the property provider a question

Register to favourite