Skip to content

Content

Holistic Futures - Supported Independent Living - Supported Accommodation

Gisborne VIC 3437

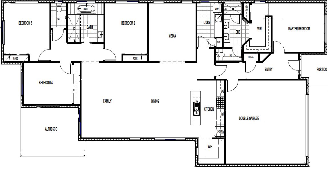
4 bed

2 bath

2 parking
spaces

Supported Housing in Gisborne

This house has:

• 4 bedrooms (one will be for Support Worker)

• Built in robes in each bedroom

• 2 bathrooms,

• Large dining and living area

• Separate lounge

• Large kitchen

• Undercover outdoor area

• Internet

There is currently one male living in the property who is looking for some house mates to join him

The house is in close proximity to Shopping Centers and is close to a main road and public transport.

This is a new SIL home. SDA funding is not required.

Services are provided by Holistic Futures support staff and the house is suitable for participants who have no access needs.

Room Information: The bedrooms have built in wardrobes, heating and cooling.

Current Support Model: The house will offer support staff 24 hours, 7 days a week and overnight (sleepover) to meet resident’s individual needs.

Whilst living in the house Holistic Futures will support you

• to access community activities

• to create new relationships

• to build your capacity to cook

• in all personal care activities

• with your health and medication

Holistic Futures will support you to obtain Supported Independent Living (SIL) in your NDIS plan to this opportunity can become a reality.

Please contact Christy Hobbs on 0427 987 814 to arrange a time to view the house.

Eligibility Criteria:

• The applicant must be 21 years and over.

• The applicant must be eligible and able to secure an appropriate level of NDIS funding

• The applicant (or nominated person) is prepared to sign a residential statement.

• The applicant has the financial means to make payments for rent.

Interested in this property?
Here are your options

Ready to apply? Share your details with the provider

Need more detail? Ask the property provider a question

Register to favourite

Property Features

The building
Single storey
Access
Wide doorframes Wide pathways
Environment
Air conditioning Heating
Outside
Secure backyard Raised garden bed Garden Deck/verandah Outdoor living/entertainment area
Shared Living
Storage for personal equipment Window Built-in robe Shared bathroom Shared living space Shared kitchen Shared laundry
Registered SDA: No
Stay Duration Permanent

Provider Details

SIL Provider: Holistic Futures

What's nearby

Transport Bus, Train
Shopping Local Shopping Centre Close by

Area Map

Interested in this property?
Here are your options

Ready to apply? Share your details with the provider

Need more detail? Ask the property provider a question

Register to favourite