Skip to content

Content

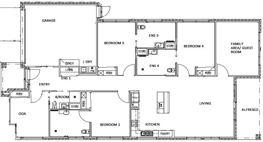
Woodcroft Houses - Brand New Builds

Woodcroft SA 5162

3 bed

3 bath

2 parking
spaces

This smart and stylish 3-bedroom home . Located in a welcoming street in the bustling suburb of Woodcroft, Adelaide CBD this property invites you into the local community.

Spacious and light-filled, each of the three bedrooms has its own accessible bathroom with an oversized shower, full height tiling, ample storage and celling reinforcements to allow for hoist installations if required. The kitchen, being the heart of the home, gives a warm invite to the shared living spaces of your new home. Individual pull out pantries line the kitchen, complimented by accessible preparation and cooking areas, featuring luxury appliances and stone benchtops.

Functional and smart, this home is pre-fitted with a range of state of the art assistive technology modifications, including automatic bedroom doors, blinds, lighting and fully electric kitchen benchtops. You will also enjoy zone-controlled air conditioning, in full control of your climate comfort.

In this home, you are able to rest easy knowing the space is equipped with back up battery power and industry leading emergency response systems. The home comes complete with a separate bedroom and bathroom for a carer (onsite Overnight Assistance) to ensure your immediate access to supports, when and how you choose.

*To be eligible for Specialist Disability Accommodation, you will need to be a NDIS participant and your plan needs to include approved Specialist Disability Accommodation Funding. If you are unsure if you qualify, have a chat with your NDIS coordinator or contact intake@claro.com.au

Interested in this property?
Here are your options

Ready to apply? Share your details with the provider

Need more detail? Ask the property provider a question

Register to favourite

Property Features

The building
Single storey
Access
Ramp access Ceiling hoist Wide doorframes
Environment
Air conditioning Heating
Outside
Secure backyard Outdoor living/entertainment area
Shared Living
Storage for personal equipment Window Private/ensuite bathroom Shared living space Shared kitchen Shared laundry
Registered SDA: Yes
SDA Category: Fully Accessible
High Physical Support
Stay Duration Permanent

Provider Details

What's nearby

Local terrain 913m to the nearest park at Waverley Way Reserve, Morphett Vale SA, Australia.
Transport 5km to the nearest train station at Christie Downs SA, Australia.
344m to the nearest bus stop at Stop 48A Panalatinga Rd - West side, Morphett Vale SA, Australia.
Shopping 724m to the nearest shopping centre at Woodcroft Town Centre, Morphett Vale SA, Australia.
Other 5km to the nearest hospital at Noarlunga Hospital, Alexander Kelly Drive, Noarlunga Centre SA, Australia.
1km to the nearest medical practice (GP) at Taylors Avenue Medical Centre, Taylors Avenue, Morphett Vale SA, Australia.

Area Map

Interested in this property?
Here are your options

Ready to apply? Share your details with the provider

Need more detail? Ask the property provider a question

Register to favourite