Skip to content

Content

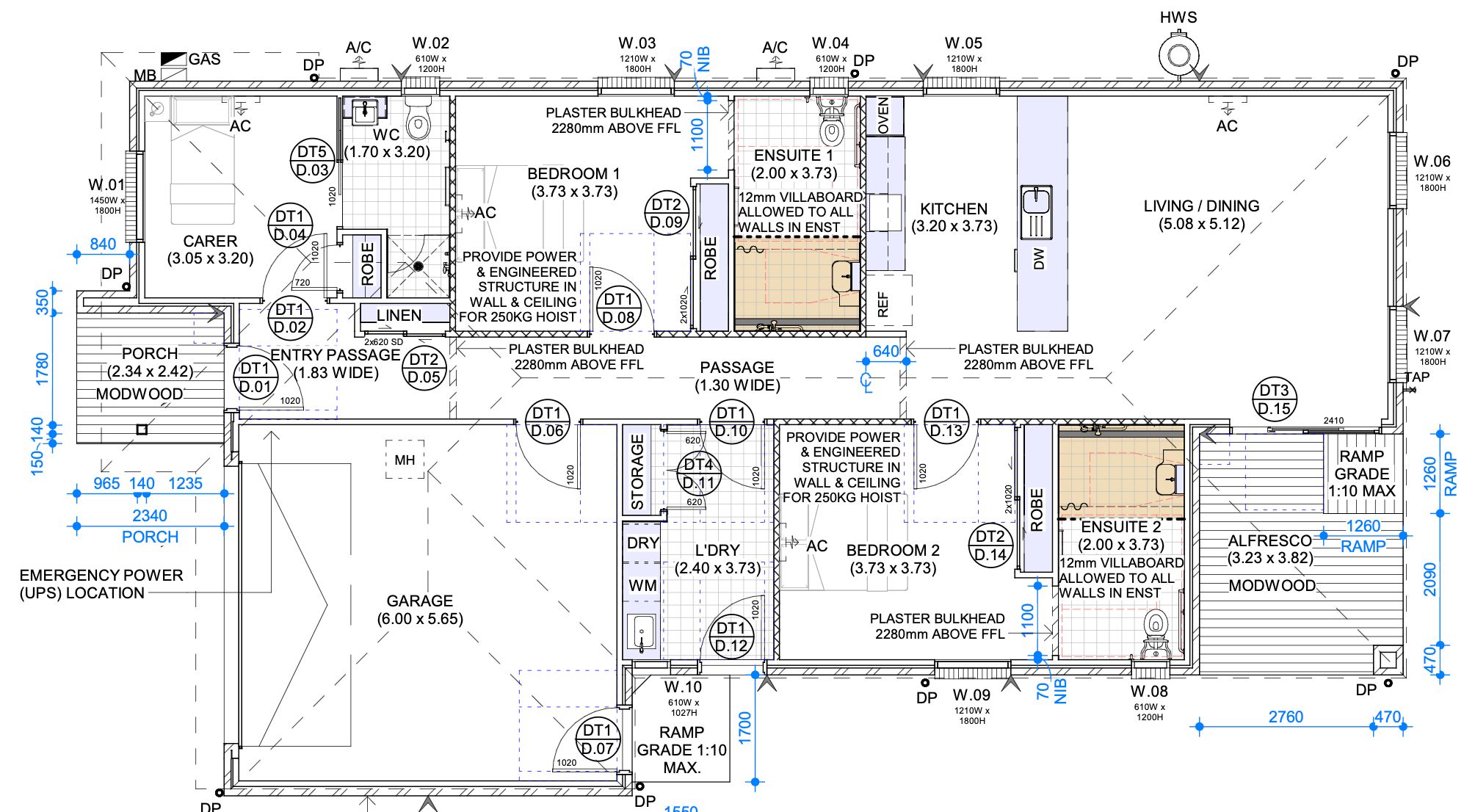
Where Nature Meets Culture - High-Quality 2+OOA HPS SDA Home in Officer

Officer VIC 3809

3 bed

3 bath

2 parking
spaces

This home is situated in a rapidly growing region with high SDA demand, offering easy access to essential services while surrounded by green open spaces and recreational options. Its close proximity to the M1 freeway ensures convenient travel for families and support providers, while also providing seamless access to nearby suburbs and their facilities.

Just a 5-minute drive away is Club Officer, where participants and their loved ones can enjoy lakeside dining and a relaxed atmosphere. The neighbourhood also features multiple parks, playgrounds, and scenic lakes, offering clean air and ample opportunities for gentle outdoor activities that promote wellbeing.

With nearby shopping centres, medical facilities, cultural venues, and public transport, this home is perfect for participants seeking both independence and connection in a well-rounded, accessible community.

🔑 Key Features:

• 2 spacious participant bedrooms + Onsite Overnight Assistance (OOA) room

• Purpose-built to HPS design standards

• Fully accessible kitchen and bathroom

• Light-filled, open-plan living and dining

• Quiet residential setting with strong community feel

• Surrounded by parks, lakes, and playgrounds — perfect for relaxation and outdoor engagement

• Quick access to M1 Freeway — convenient for family, carers, and travel

• Walking/driving distance to lakeside dining and cultural experiences

• Located in one of South-East Melbourne’s fastest-growing SDA catchments

🛍️ Shopping Centres Nearby:

• Lakeside Square – 6 min drive

• Arena Shopping Centre – 7 min drive

• Village Lakeside Shopping Centre – 10 min drive

🏥 Healthcare Services Nearby:

• Officer Medical Centre – 7 min drive

• One Centre Square Medical Hub – 7 min drive

• Aghapy Medical Centre – 10 min drive

• Trident Medical Centre – 10 min drive

• Monash Health - Casey Hospital – 15 min drive

🎭 Cultural & Lifestyle Amenities:

• Cardinia Cultural Centre – 10 min drive

🚉 Public Transport Access:

• Cardinia Road Railway Station – 9 min drive

• Officer Railway Station – 9 min drive

📩 Enquire Now!

With high demand in Officer and limited availability, this is a rare opportunity to secure a purpose-built SDA home in one of Melbourne’s most dynamic growth corridors.

Interested in this property?
Here are your options

Ready to apply? Share your details with the provider

Need more detail? Ask the property provider a question

Register to favourite

Property Features

The building
Single storey
Access
Wide doorframes Wide pathways
Environment
Air conditioning
Outside
Secure backyard Garden Deck/verandah Outdoor living/entertainment area
Shared Living
Storage for personal equipment Window Built-in robe Private/ensuite bathroom Shared living space Shared kitchen Shared laundry
Registered SDA: Yes
SDA Category: High Physical Support
Stay Duration Permanent
Medium term

Provider Details

SDA Provider: Ops Care Pty Ltd

What's nearby

Shopping Lakeside Square

Area Map

Interested in this property?
Here are your options

Ready to apply? Share your details with the provider

Need more detail? Ask the property provider a question

Register to favourite