Skip to content

Content

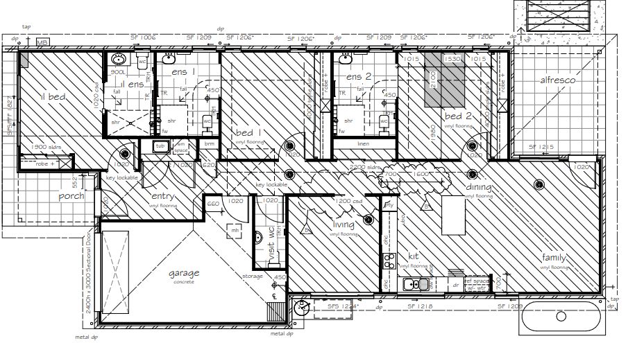
High Physical Support House, Newtown

Newtown QLD 4350

3 bed

3 bath

1 parking
space

Thoughtfully designed for two residents and their in-home supports, this home features two bedrooms, three bathrooms, and a dedicated Onsite Overnight Assistance (OOA) room. With seamless indoor-outdoor living, privacy, and safety at the forefront, every space is crafted to promote independence and comfort. Perfect for those seeking a secure, modern home with accessibility and convenience in mind.

To apply for this exciting new residence please complete a participant Expression of Interest form. Please feel free to contact us on 1300 223278 or email ADAPT Housing on info@adapthousing.com.au to learn more about our homes and the ADAPT model.

Interested in this property?
Here are your options

Ready to apply? Share your details with the provider

Need more detail? Ask the property provider a question

Register to favourite

Property Features

The building
Single storey
Access
Wide doorframes Wide pathways
Environment
Air conditioning Heating
Outside
Secure backyard
Shared Living
Window Built-in robe
Registered SDA: Yes
SDA Category: High Physical Support
Stay Duration Permanent

What's nearby

Local terrain 9-minute drive to Toowoomba Hospital
6-minute drive to Ochre Medical Centre Wyalla
5-minute drive to local restaurants and cafes
4-minute drive to the local cinema
Transport 4-minute drive to Toowoomba train station

Area Map

Interested in this property?
Here are your options

Ready to apply? Share your details with the provider

Need more detail? Ask the property provider a question

Register to favourite