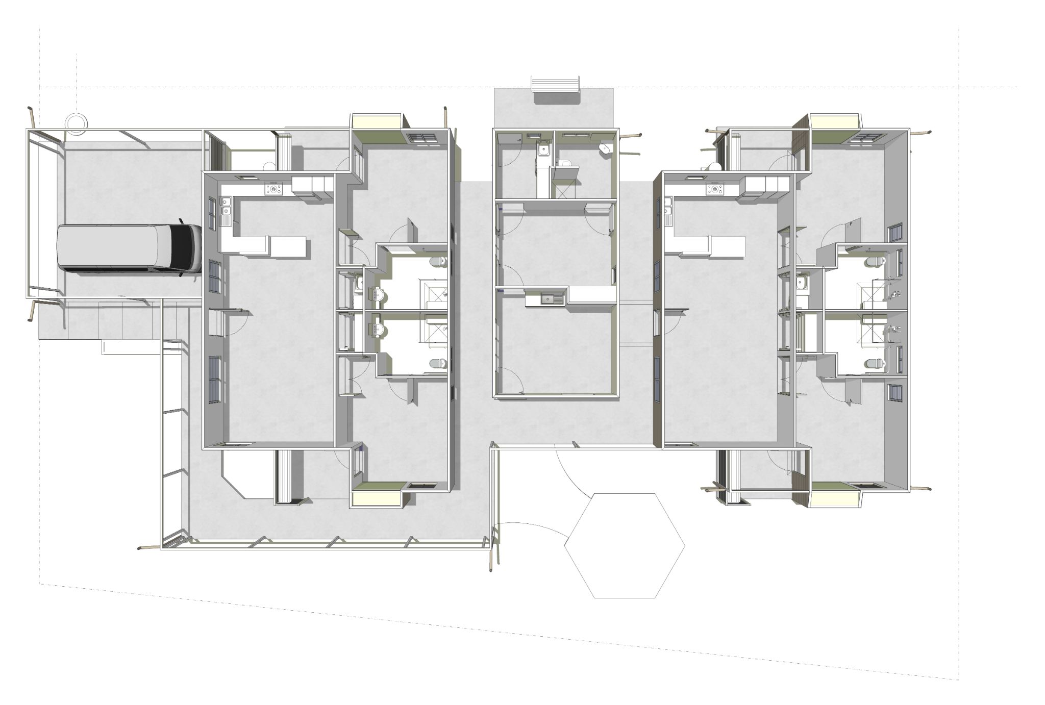
Modern SDA home designed for High Physical Support residents
Andergrove QLD 4740
4 bed
4 bath
3 parking spaces
This Four bedroom SDA home with On site over night assistance residence offers a great opportunity for residents to enjoy an independent living experience with an emphasis on comfort and privacy.
The home is split into two dual living villa's separated by the OOA. Each bedroom has an ensuite and private patio and is fitted with ceiling hoists whilst each villa has a large combined living, Dining and kitchen area. All white-goods are included. In addition a large outdoor gazebo can be enjoyed by all residents.
Interested in this property? Here are your options
Ready to apply? Share your details with the provider
Need more detail? Ask the property provider a question
ShoppingApproximately 4 minutes drive or 20 minute wheelchair ride to Andergrove Central shopping centre Less than 400m to Andergrove store on Bedford road
OtherApproximately 4 minutes drive or 20 minute wheelchair ride to Andergrove medical centre
Interested in this property? Here are your options
Ready to apply? Share your details with the provider
Need more detail? Ask the property provider a question
Our match score indicates how closely 'matched' you are to this property. The longer the line; the better you are matched with the property with regards to your preferences and funding.
Our match score indicates how closely 'matched' this applicant is to your property. The longer the line; the better they are matched with regards to their preferences and funding.
404 current rooms in South Australia.
Login to find your Nest
Reset your password
Sign up for Nest in seconds
Why are you signing up?
Register to apply for:Modern SDA home designed for High Physical Support residents, Andergrove QLD 4740
When you click 'Register & Apply', your profile details will be shared with the accommodation provider. They'll assess how suited you are to the room and contact you to discuss your application.
Your application has been submitted.
The accommodation provider will be in touch to let you know the outcome of your application.