Skip to content

Content

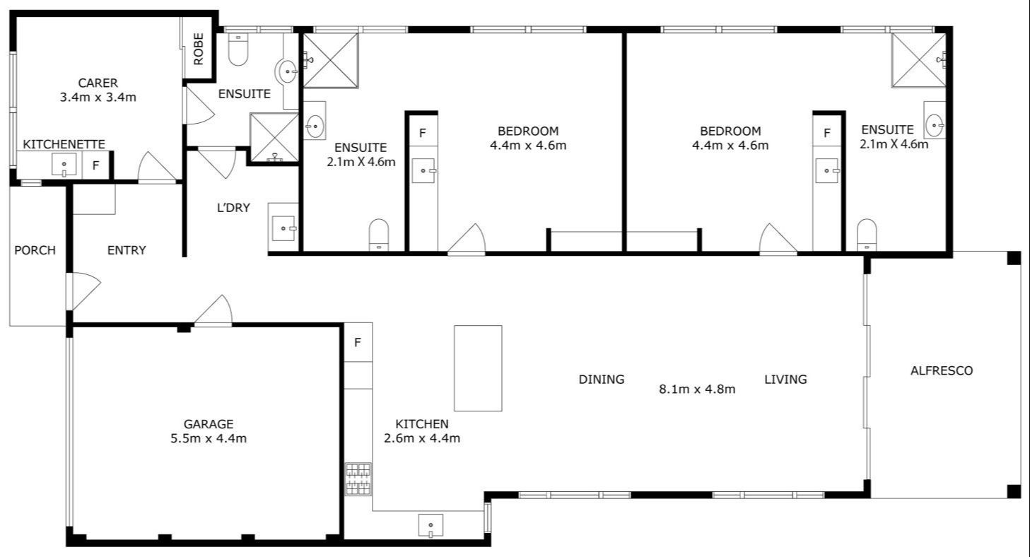
2 SDA (High Physical Support) Rooms + OOA, in Dalyellup Beach

Dalyellup WA 6230

3 bed

3 bath

2 parking
spaces

This residence offers a comfortable smart living SDA home in Dalyellup Beach, suitable for up to two SDA Participants.

High physical supported ensuite bathrooms, fully air conditioned throughout, security screens, and wheelchair accessible to all internal and external areas.

* 2 HPS bedrooms, with HPS ensuites and SDA accessibility options, split system air conditioning and capacity for ceiling hoists.

* OOA bedroom for onsite overnight support.

Spacious open plan living

* Kitchen with height-adjustable bench top, dish drawer dishwasher, Caesarstone benchtops, + more

* Laundry, with washer and dryer provided.

* Secure lock up garage

Horizon SDA is here to help you obtain Specialist Disability Accommodation.

We are SDA Developers and a registered SDA Provider who specialise in High Physical Support homes.

All our SDA houses are designed to the highest specifications and physical support SDA certification criteria and are totally independently 3rd party approved.

Interested in this property?
Here are your options

Ready to apply? Share your details with the provider

Need more detail? Ask the property provider a question

Register to favourite

Property Features

The building
Single storey
Access
Wide doorframes Wide pathways
Environment
Air conditioning
Outside
Secure backyard Outdoor living/entertainment area Undercover access from parking to property
Shared Living
Storage for personal equipment Window Built-in robe Private/ensuite bathroom Shared living space Shared kitchen Shared laundry Pet friendly
Registered SDA: Yes
SDA Category: High Physical Support
Stay Duration Permanent
Medium term
Short term

Area Map

Interested in this property?
Here are your options

Ready to apply? Share your details with the provider

Need more detail? Ask the property provider a question

Register to favourite