Skip to content

Content

Custom-Designed SDA Home in Bundamba- Bring your own supports!

Bundamba QLD 4304

3 bed

3 bath

2 parking
spaces

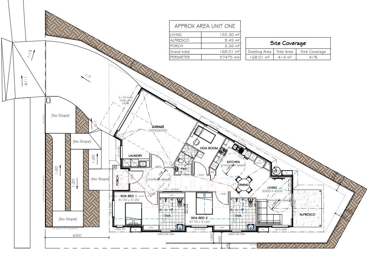
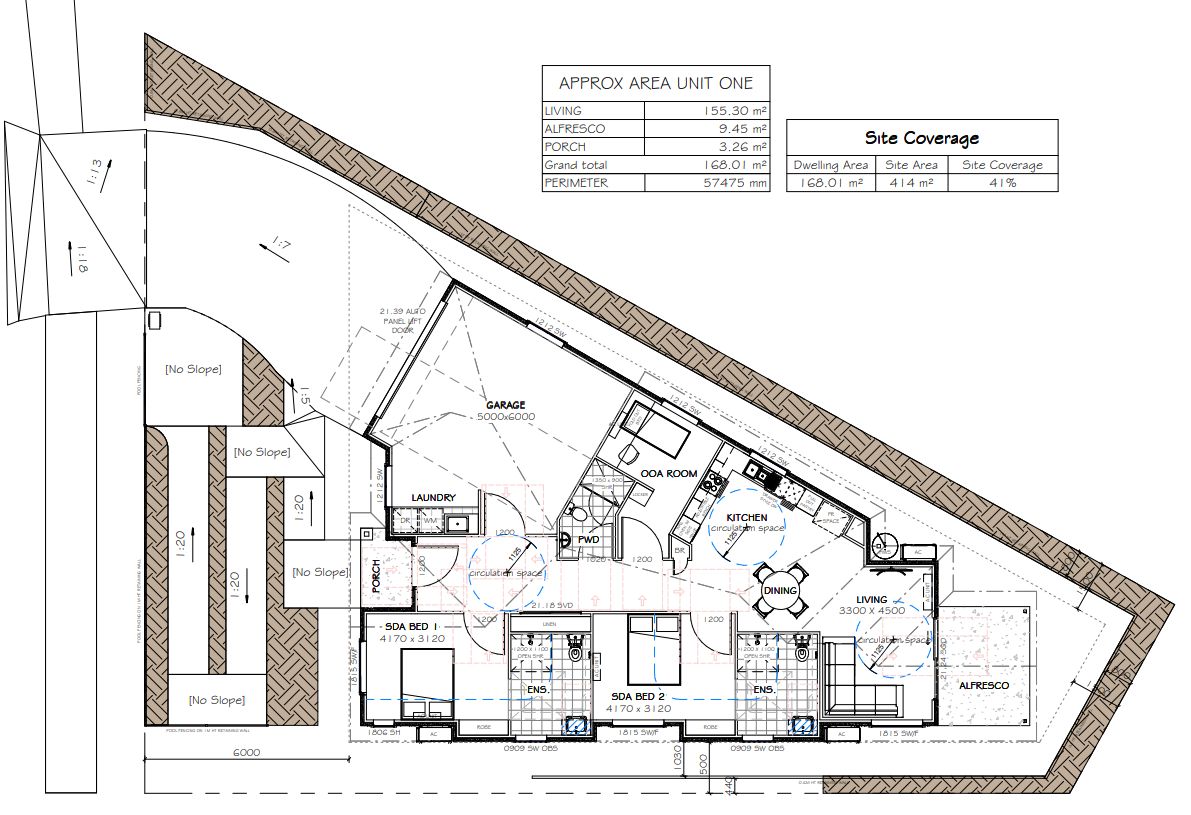
Built to support those with high needs, a multitude of design factors have been implemented that reduce barriers to accessibility and comfort so commonly unthought of in non-specialised housing options. Large light-filled bedrooms with ample storage space and breathing room allow you to add any desired personal touches to your sanctuary. With each bedroom comes a large ensuite featuring fully accessible showers, non-slip floors and structural provisions for ceiling hoists and safe self-care. This house comes with an additional 3rd bedroom for Overnight Onsite Assistance, to ensure immediate access to your supports should you need them.

Large home

Three participant bedrooms with their own ensuites

Onsite Overnight Assistance room

Open plan living and kitchen area

Fischer & Paykel appliances

Ceiling fans and split aircon conditioning in every room and living area

Non-slip tiles to wet areas

Wide hallways and clear doorways

Landscaped gardens

Solar power and battery for emergency power supply

Fully fenced backyard

Break out into the large communal area featuring state of the art finishes and appliances. Enjoy large kitchen spaces and storage options for your cooking needs, a light filled living room for socialising or lounging about, and even an outdoor alfresco area for entertaining and access to your green and peaceful backyard.

Fitted with smart technology this home has a secure alarm system, climate control in every room, touch screen intercom integration, smart blinds, solar energy, and emergency power to promote ease of living and comfortability.

In an Everhomes house, we will constantly work with you to ensure that you can prosper without worrying about barriers in your home. Each home has been designed to complement you in achieving your goals and enhancing your autonomy.

Interested in this property?
Here are your options

Ready to apply? Share your details with the provider

Need more detail? Ask the property provider a question

Register to favourite

Property Features

The building
Single storey
Access
Stair access Ramp access Ceiling hoist Wide doorframes Wide pathways
Environment
Air conditioning Heating
Outside
Secure backyard Garden Outdoor living/entertainment area Undercover access from parking to property
Shared Living
Storage for personal equipment Window Built-in robe Private/ensuite bathroom Shared living space Shared kitchen Shared laundry Pet friendly
Registered SDA: Yes
SDA Category: Improved Liveability
Fully Accessible
High Physical Support
Stay Duration Permanent
Medium term

Provider Details

SDA Provider: Everhomes Pty Ltd

What's nearby

Local terrain Down the road from Tom Easterbrook Park
Transport 2km from Bundamba Station
Shopping 2km to Costco and Booval Shopping Center
Other 10 minute drive to Ipswich Hospital

Area Map

Interested in this property?
Here are your options

Ready to apply? Share your details with the provider

Need more detail? Ask the property provider a question

Register to favourite