Skip to content

Content

3 SDA Rooms (HPS) + OOA, Available in Bohle Plains!

Bohle Plains QLD 4817

4 bed

4 bath

1 parking
space

Horizon SDA is here to help you obtain Specialist Disability Accommodation. Our houses are light and airy; open plan and very spacious. We are SDA Developers and a registered SDA Provider who specialise in High Physical Support homes.

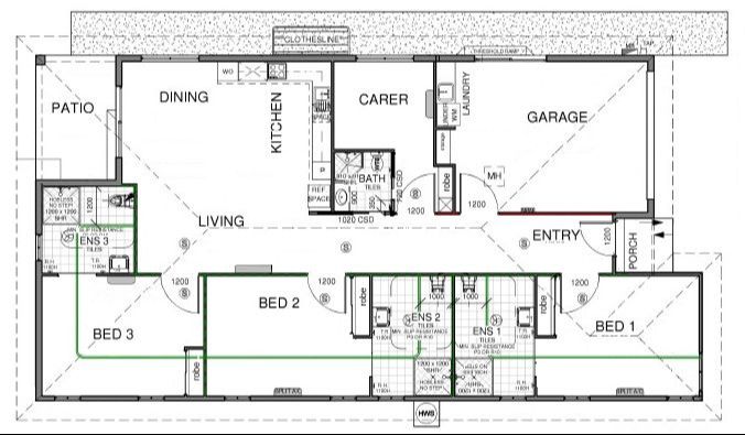
This residence can house up to three SDA participants at the High Physical Support level, with an OOA Room for a support worker or family member.

Comfortable, smart living SDA, with high physical supported ensuite bathrooms to each of the SDA rooms, ensuite bathroom for the OOA room, plus a separate powder room with additional toilet. Fully air conditioned, with security screens, wheelchair accessible to all internal and external areas, and completely secure with a garage panel lift door.

• 3 HPS bedrooms, with ensuites and SDA accessibility options, split system air conditioning and capacity for ceiling hoists if required.

• OOA bedroom for onsite overnight support

• Modern kitchen with:

o a height-adjustable bench top,

o dish drawer dishwasher,

o Caesarstone benchtops,

o strip lighting to the overhead cupboards

o bright lighting, filled with natural light

• Large living room

• Spacious Dining room

All our SDA houses are designed to the highest specifications and physical support SDA certification criteria and are totally independently 3rd party approved.

Horizon SDA Care can customise the homes to meet the needs of individual participants and come equipped with cutting-edge smart-home technology, such as the ability to control lights, blinds, access doors, air conditioning, and intercom systems from a personal device.

Contact Kylie Peirce on 0493 028 591 / k.peirce@horizonsdacare.com.au. for more information.

Interested in this property?
Here are your options

Ready to apply? Share your details with the provider

Need more detail? Ask the property provider a question

Register to favourite

Property Features

The building
Single storey
Access
Ceiling hoist Wide doorframes Wide pathways
Environment
Air conditioning
Outside
Secure backyard Outdoor living/entertainment area Undercover access from parking to property
Shared Living
Storage for personal equipment Window Built-in robe Private/ensuite bathroom Shared living space Shared kitchen Shared laundry
Registered SDA: Yes
SDA Category: Improved Liveability
Fully Accessible
High Physical Support
Stay Duration Permanent
Medium term
Short term

Area Map

Interested in this property?
Here are your options

Ready to apply? Share your details with the provider

Need more detail? Ask the property provider a question

Register to favourite