Skip to content

Content

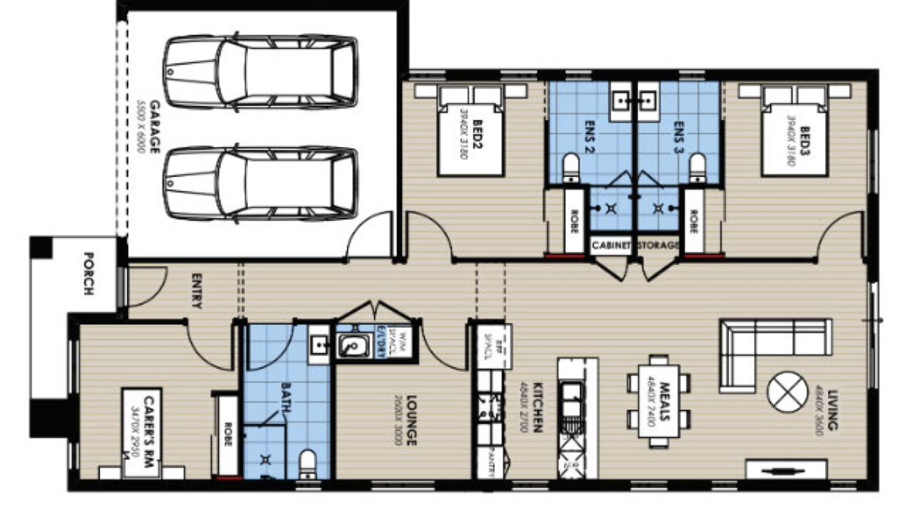
SDA IL 2 Bedroom House plus OOA Armstrong Creek, Vic | 244

Armstrong Creek VIC 3217

2 bed

2 bath

2 parking
spaces

*** NO MRRC FOR 18 MONTHS ***

**First 18 Months MRRC waived, thereafter the rent is 25% of the tenant's income**

Home is more than just a place – it’s where you feel safe, seen, and supported. That’s why we’re proud to introduce a new kind of SDA home in Armstrong Creek, thoughtfully designed under the Improved Livability category. Created for NDIS participants who need a little extra support with vision, perception, or sensory processing, these homes are built with care, dignity, and independence at their core.

🏠 Property Features

πŸ›οΈ 2 Bedrooms – Comfortable, accessible, and private.

🚿 2 Bathrooms – Modern design with easy access and safety features.

πŸ‘©β€βš•οΈ OOA – Dedicated space for support staff.

πŸš— 2-Car Garage – Secure parking or extra storage space.

🌬️ Heating & Cooling System – Climate control for year-round comfort.

🐾 Pets Allowed – Your furry friends are welcome too!

🌿 Outdoor Area – Private outdoor space to relax and enjoy the fresh air.

Located just 15 minutes from the beach and bay, this brand new estate offers the perfect balance of lifestyle and convenience. You're never far from what matters – with a new local shopping centre just minutes away and quality medical facilities close by. Surrounded by great lifestyle options, this is a community designed for easy, modern living.

Whether you're looking for yourself, a loved one, or someone you support, we’re here to help you take the next step.

Get in touch today to learn more or register your interest.

Interested in this property?
Here are your options

Ready to apply? Share your details with the provider

Need more detail? Ask the property provider a question

Register to favourite

Property Features

The building
Single storey
Access
Wide pathways
Environment
Air conditioning Heating
Outside
Outdoor living/entertainment area
Shared Living
Built-in robe Private/ensuite bathroom Shared living space Shared kitchen Pet friendly
Registered SDA: Yes
SDA Category: Improved Liveability
Stay Duration Permanent

What's nearby

Transport 900m from bus stop
4.5km from train station
Shopping 1.8km from shopping mall
Other 10.8km from hospital
2.3km from park
1.4km from medical centre

Area Map

Interested in this property?
Here are your options

Ready to apply? Share your details with the provider

Need more detail? Ask the property provider a question

Register to favourite