Skip to content

Content

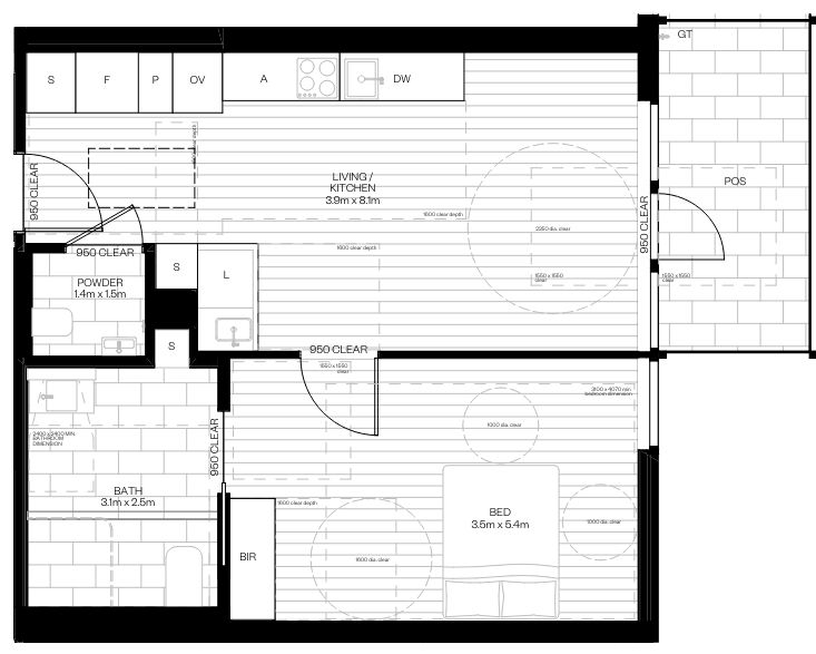
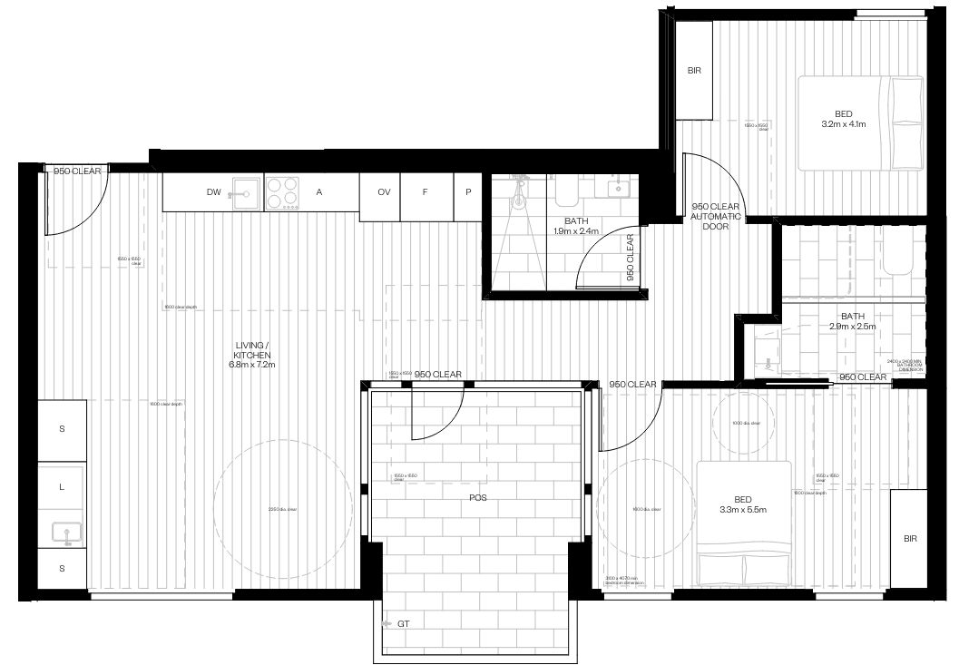
Altona - Brand New SDA Apartment - 1 Bedroom Apartments - HPS or FA

Altona VIC 3018

1 bed

1 bath

1 parking
space

Property description:

Location: Altona

Design Category: HPS

Available now

Purpose-built modern fully accessible

1 Bedroom Apartments Available

OOA - onsite overnight staff

Spacious open plan living with high-quality fixtures and finishes

Interested in this property?
Here are your options

Ready to apply? Share your details with the provider

Need more detail? Ask the property provider a question

Register to favourite

Property Features

Access
Lift access Ramp access Ceiling hoist Wide doorframes
Environment
Air conditioning Heating
Outside
Undercover access from parking to property
Registered SDA: Yes
SDA Category: Improved Liveability
Fully Accessible
High Physical Support
Stay Duration Permanent
Medium term
Short term

Provider Details

SDA Provider: Access Hogan Homes SIL Provider: Hogan Care

Area Map

Interested in this property?
Here are your options

Ready to apply? Share your details with the provider

Need more detail? Ask the property provider a question

Register to favourite