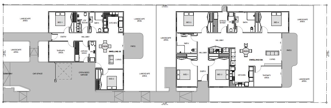
A home to enable. We’re creating a beautiful living environment matched with assistive technology capabilities and innovation in its build. Providing two separate living spaces and Support Worker accommodation and office. This home presents contemporary living at its finest.
Like nothing before, this home has been purposely designed with the residents in mind. Offering functionality, accessibility and durability, making this stylish home live up to rigorous quality and safety standards and provides an ongoing quality living space.
Located in an established community setting, this home brings hand-picked, curated interiors and colour palettes, fixtures and finishes with an emphasis on design coupled with a calm, luxury feel.
This home will serve NDIS Participants with SDA at Fully Accessible, Robust or Improved Liveability.
Live the life you want.
Interested in this property? Here are your options
Ready to apply? Share your details with the provider
Need more detail? Ask the property provider a question
Air conditioningCompatible to Environmental Control Units (ECU)Heating
Outside
Secure backyardRaised garden bedGardenDeck/verandahOutdoor living/entertainment areaUndercover access from parking to property
Shared Living
Storage for personal equipmentWindowBuilt-in robeDirect access to yard / courtyard / gardenShared bathroomShared living spaceShared kitchenShared laundry
Participant must be SDA eligible and have SDA in their NDIS Plan in one of the following SDA design categories:
Fully Accessible, Robust or Improved Liveability
What's nearby
TransportWindsor is well serviced with public transport. Within minutes is Windsor train station which provides access on T1 Line from Richmond to the City via Blacktown and Strathfield. Bus route 676 does a loop round Windsor, 675 takes you to Richmond, 674 to Mount Druitt and the 673 to Penrith.
ShoppingOnly a 5 minute drive away is Windsor Riverview Shopping Centre which is home to Coles, Woolworths, a pharmacy, a medical centre, beauty shops, banks and other speciality stores. Conveniently an IGA and a pharmacy is located only a short distance from the home. Located 10 minutes’ drive away is Richmond which is a larger town and home to many more speciality shops.
OtherLocated only 5 minutes’ drive away is Hawkesbury District Health Service. Supported by over 50 specialist medical services within 10km, including physiotherapy, speech pathologists and occupational therapists.
Interested in this property? Here are your options
Ready to apply? Share your details with the provider
Need more detail? Ask the property provider a question
Our match score indicates how closely 'matched' you are to this property. The longer the line; the better you are matched with the property with regards to your preferences and funding.
Our match score indicates how closely 'matched' this applicant is to your property. The longer the line; the better they are matched with regards to their preferences and funding.
2522 listed properties in New South Wales.
Login to find your Nest
Reset your password
Sign up for Nest in seconds
Why are you signing up?
Register to apply for:Beautiful 2 Bedroom House in South Windsor, South Windsor NSW 2756
When you click 'Register & Apply', your profile details will be shared with the accommodation provider. They'll assess how suited you are to the room and contact you to discuss your application.
Your application has been submitted.
The accommodation provider will be in touch to let you know the outcome of your application.