Skip to content

Content

3 High Physical Support Homes in Tarneit – NDIS, Appendix H & TAC Considered

Tarneit VIC 3029

3 bed

3 bath

2 parking
spaces

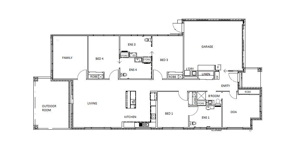
Enjoy independence, comfort, and a strong sense of community in three Specialist Disability Accommodation (SDA) homes in Tarneit. These well-designed homes are built to the High Physical Support SDA Design Standard, offering safety, accessibility, and modern, functional living spaces.

Each home accommodates three residents, each with their own private bedroom and ensuite. Shared areas include open-plan kitchens, dining, and living rooms, as well as landscaped outdoor space ideal for socialising and relaxing. With wide doorways, step-free access, and fully wheelchair-accessible layouts, the homes facilitate mobility and ease of use.

Safety is a key priority — the properties are assistive technology–ready, with ceiling hoist provisions and emergency power backup. Built-in wardrobes, modern finishes, and individual climate control help provide a comfortable, personal environment.

We are considering applications from people with NDIS SDA funding, as well as from those with Appendix H, SIL-only, or TAC funding, subject to suitability and availability. One of the homes is TAC-registered.

Support is available 24/7, provided through Claro, a registered NDIS provider. Claro delivers tailored in-home supports, including Supported Independent Living (SIL) and community participation, to empower residents to live confidently and achieve their goals.

Claro — awarded the Most Outstanding Disability Support Provider at the 2025 Enablement Awards — has partnered with SDA provider Acares as the onsite care partner. Claro is a registered NDIS provider offering Supported Independent Living (SIL) and Community Participation (CP) supports, helping residents live confidently, safely, and on their own terms.

To be eligible for Specialist Disability Accommodation, you’ll need to be a NDIS participant and have approved SDA funding in your plan. If you’re unsure, speak with your NDIS coordinator or contact Claro via intake@claro.com.au or the form on this page.

Interested in this property?
Here are your options

Ready to apply? Share your details with the provider

Need more detail? Ask the property provider a question

Register to favourite

Property Features

The building
Single storey
Access
Wide doorframes Wide pathways
Environment
Air conditioning Heating
Outside
Outdoor living/entertainment area
Shared Living
Storage for personal equipment Window Built-in robe Direct access to yard / courtyard / garden Private/ensuite bathroom Shared living space Shared kitchen Shared laundry
Registered SDA: No
Stay Duration Permanent

Provider Details

What's nearby

Local terrain 864m to the nearest park at The Rushes, Geoffrey Terrace, Tarneit VIC, Australia.
Transport 5km to the nearest train station at Tarneit Station, Derrimut Road, Tarneit VIC, Australia.
Shopping 988m to the nearest bus stop at Riverdale Village Shopping Centre, Hummingbird Boulevard, Tarneit VIC, Australia.

Area Map

Interested in this property?
Here are your options

Ready to apply? Share your details with the provider

Need more detail? Ask the property provider a question

Register to favourite