Skip to content

Content

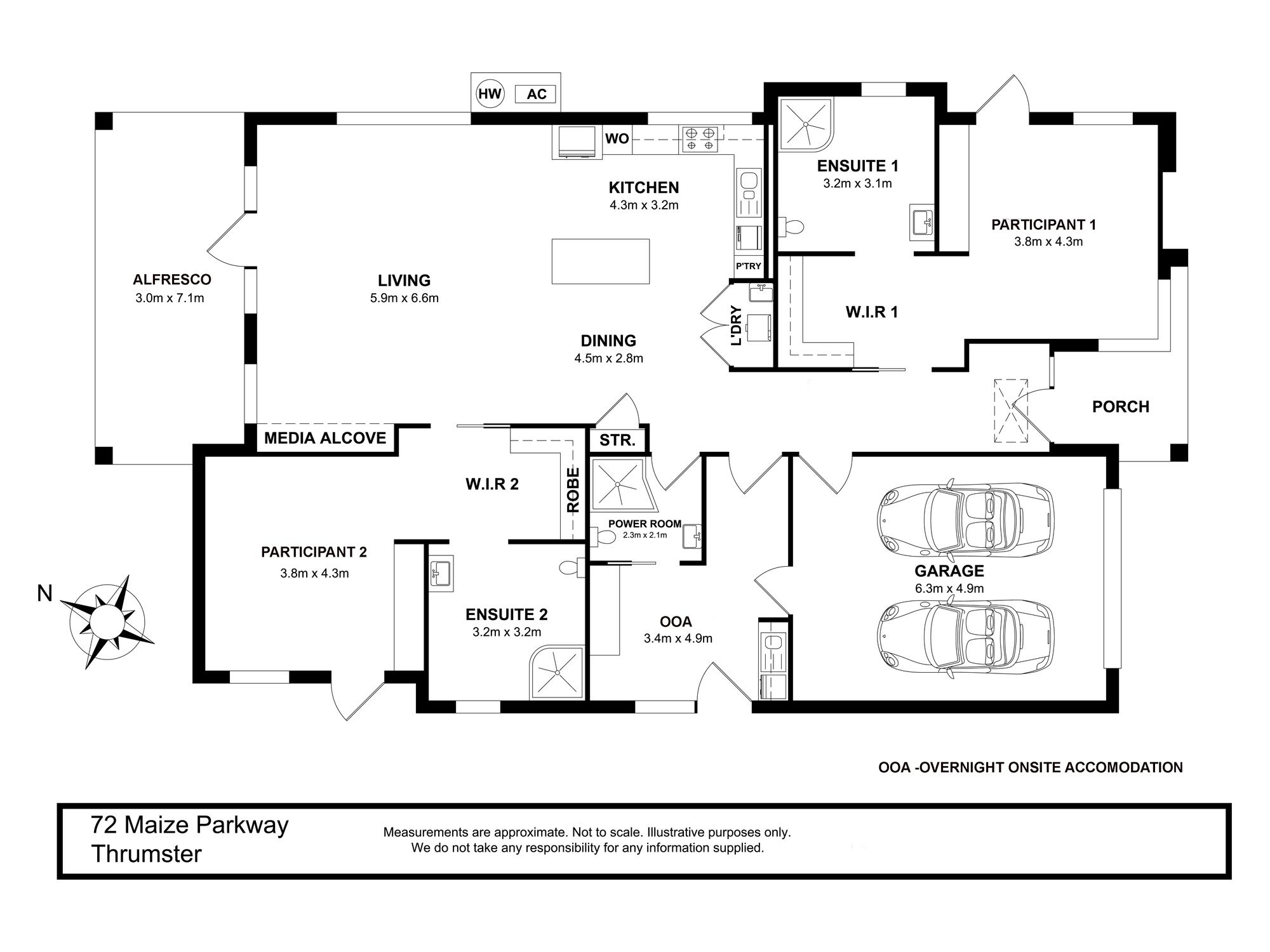
Brand-new 2-bedroom fully accessible house in Port Macquarie NSW

Thrumster NSW 2444

2 bed

3 bath

2 parking
spaces

This modern fully accessible SDA home is located in Thrumster, quiet suburb of Port Macquarie.

With careful planning and attention to detail, the property offers 2 spacious bedrooms with walk-in robes and ensuite bathrooms. An extra bedroom and bathroom is available for the overnight on-site support.

The open floorplan with floorboards throughout includes an oversized living area, perfect for relaxation and social interaction, kitchen and dining and a large secured backyard. The other features are:

- Internal laundry

- Garage for 2 cars with internal access

If you have been searching for a new accessible home that offers you modern comfort and convenience look no further. Enquire now!

Interested in this property?
Here are your options

Ready to apply? Share your details with the provider

Need more detail? Ask the property provider a question

Register to favourite

Property Features

The building
Single storey
Access
Wide doorframes Wide pathways
Environment
Air conditioning
Outside
Secure backyard Undercover access from parking to property
Shared Living
Storage for personal equipment Window Built-in robe Private/ensuite bathroom Shared living space Shared laundry
Registered SDA: Yes
SDA Category: Fully Accessible
Stay Duration Permanent

Provider Details

SDA Provider: Home in Place

What's nearby

Other Karikeree Creek Park
Port Macquarie Service Centre
McDonald's
Guzman y Gomez - Port Macquarie
Port Macquarie Base Hospital

Area Map

Interested in this property?
Here are your options

Ready to apply? Share your details with the provider

Need more detail? Ask the property provider a question

Register to favourite