Skip to content

Content

Two Bedroom Robust SDA with OOA & Breakout Room in Deebing Heights

Deebing Heights QLD 4306

3 bed

3 bath

2 parking
spaces

This Robust home contains two tenant bedrooms, as well as Overnight Onsite Assistance Carers room and an additional breakout room. Conveniently just off the Centenary Highway. As one of the largest growth areas in South East Queensland, Deebing Heights is a fantastic mix of community spirit and convenience.

In an Everhomes House we work with you to ensure that you can prosper without worrying about barriers in your home. Each home has been designed to complement you in achieving your goals and enhancing your autonomy.

This house is currently under construction and the photos are of indicative nature only and may not be of the actual property constructed at the address. An in person inspection is welcome.

Interested in this property?
Here are your options

Ready to apply? Share your details with the provider

Need more detail? Ask the property provider a question

Register to favourite

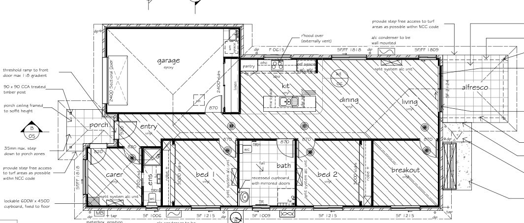
Property Features

The building
Single storey
Access
Wide doorframes Wide pathways
Environment
Air conditioning Heating
Outside
Secure backyard Deck/verandah Undercover access from parking to property
Shared Living
Built-in robe Private/ensuite bathroom Shared living space Shared kitchen Shared laundry Pet friendly
Registered SDA: Yes
SDA Category: Improved Liveability
Robust
High Physical Support
Stay Duration Permanent
Medium term

What's nearby

Local terrain Wetlands Park
Transport Ipswich Train Station
Shopping Yamanto Shopping Village
Other Ipswich Hospital
Leichhardt Family Practice

Area Map

Interested in this property?
Here are your options

Ready to apply? Share your details with the provider

Need more detail? Ask the property provider a question

Register to favourite