Skip to content

Content

Available June 2024 - New Build in Windsor Gardens

Windsor Gardens SA 5087

4 bed

1 bath

2 parking
spaces

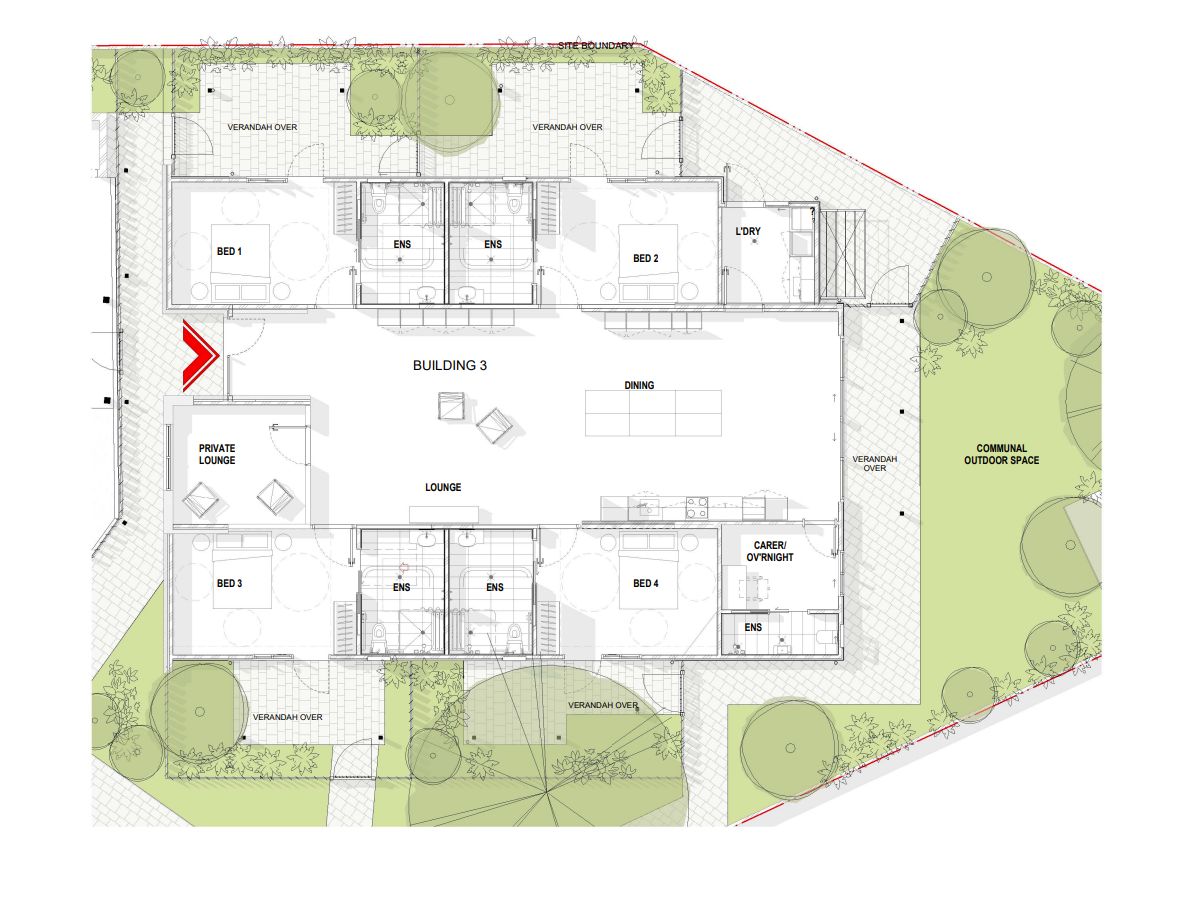
With two (2) vacancies, this soon to be built four (4) bedroom state-of-the-art home meets the SDA design category of High Physical Support. The large property will consist of a private ensuite and courtyard for each resident and an open-plan kitchen, dining and lounge area for socialising.

As this property is under construction, we are opening up expressions of interest from prospective clients looking for SIL accommodation from June 2024. Expressions of interest will ensure we can client-match new and existing clients in preparation for the expected June 2024 move-in date.

For further details, please check out our brochure, including floorplans and visuals of the design. visit dli.org.au

Interested in this property?
Here are your options

Ready to apply? Share your details with the provider

Need more detail? Ask the property provider a question

Register to favourite

Property Features

The building
Single storey
Access
Ramp access Automatic doors Wide doorframes Wide pathways
Environment
Air conditioning Compatible to Environmental Control Units (ECU) Heating
Outside
Secure backyard Secure frontyard Garden Outdoor living/entertainment area
Shared Living
Storage for personal equipment Built-in robe Direct access to yard / courtyard / garden Private/ensuite bathroom Shared living space Shared kitchen Shared laundry
Registered SDA: Yes
SDA Category: High Physical Support
Stay Duration Permanent

Provider Details

Application Criteria

- This home is suited to males or females

- A Lifestyle and Community Participation Centre adjacent to the home

- NDIS Funding

- Pre-approved SDA funding is preferable but not essential

What's nearby

Local terrain Linear Park
Transport Paradise Interchange
Shopping Gilles Plains Shopping Centre
Westfield Tea Tree Plaza
Other Modbury Hospital

Area Map

Interested in this property?
Here are your options

Ready to apply? Share your details with the provider

Need more detail? Ask the property provider a question

Register to favourite