Skip to content

Content

Comfort and Convenience in Established Tarneit – 2 Bedroom + OOA HPS Home

Tarneit VIC 3029

3 bed

3 bath

2 parking
spaces

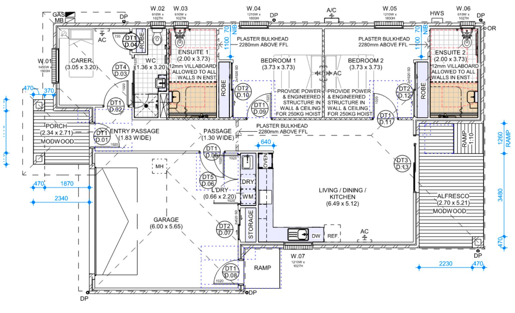
We're excited to present this brand-new Specialist Disability Accommodation (SDA) home built under the High Physical Support category – thoughtfully designed to provide comfort, independence, and safety for participants with complex support needs.

Situated in one of Melbourne’s most established and vibrant western suburbs, this 2 Bedroom + OOA SDA home in Tarneit offers a perfect balance between accessibility and tranquility.

Surrounded by multiple shopping centres, GP clinics, and public transport options – all within a 6–10 minute drive – daily errands and appointments are always within easy reach. The neighbourhood is dotted with family-friendly parks and playgrounds, making it a vibrant, supportive environment for participants’ physical and mental wellbeing.

Key Features:

• 2 participant bedrooms + 1 Onsite Overnight Assistance (OOA) room

• Purpose-built for accessibility and ease of movement

• Light-filled open-plan living and dining area

• Spacious kitchen with ample storage, designed to support participant independence

• Numerous cafes, multicultural restaurants, and takeaway options nearby

• Offers tranquil living in a vibrant and well-established suburb

• Quiet, family-friendly neighbourhood with parks and playgrounds just around the corner

An ideal home in a thriving location – designed to support a safe, happy, and independent lifestyle.

📍 Unbeatable Location – Everything Within Reach

Set in one of Tarneit’s most convenient pockets, this home offers the perfect balance of quiet living and quick access to key services.

🛍️ Shopping Centres:

• Tarneit Gardens Shopping Centre – 6 min drive

• Tarneit Central Shopping Centre – 7 min drive

• Riverdale Village Shopping Centre – 8 min drive

• Truganina Central Shopping Centre – 9 min drive

• Wyndham Village Shopping Centre – 10 min drive

🏥 Healthcare Services:

• Tarneit Central Medical Centre– 8 min drive

• Riverdale Healthplus – 8 min drive

• Tarneit Family Medical and Dental Centre – 9 min drive

• Werribee Mercy Hospital – 20 min drive

🚉 Public Transport Access:

• Tarneit Railway Station – 7 min drive

Secure the spot now!

Interested in this property?
Here are your options

Ready to apply? Share your details with the provider

Need more detail? Ask the property provider a question

Register to favourite

Property Features

The building
Single storey
Access
Wide doorframes Wide pathways
Environment
Air conditioning
Outside
Secure backyard Garden Deck/verandah Outdoor living/entertainment area
Shared Living
Storage for personal equipment Window Built-in robe Private/ensuite bathroom Shared living space Shared kitchen Shared laundry
Registered SDA: Yes
SDA Category: High Physical Support
Stay Duration Permanent
Medium term

Provider Details

SDA Provider: Ops Care Pty Ltd

What's nearby

Shopping Tarneit Gardens Shopping Centre

Area Map

Interested in this property?
Here are your options

Ready to apply? Share your details with the provider

Need more detail? Ask the property provider a question

Register to favourite