Skip to content

Content

Brand NEW Architecturally Designed Carnegie Apartments! • Offering 1- and 2-Bedroom apartments, all with 1 Bathroom, 1 Powder room and parking

Carnegie VIC 3163

1 bed

2 bath

1 parking
space

SDA by Project Friday is excited to be delivering architecturally designed, luxury apartments in the heart of Carnegie.

Just minutes from the complex, you’ll find the suburb’s vibrant activity centre on Koornang Road. The centre offers access to a wide range of goods, services and activities, including commercial, retail, entertainment and community facilities, all at your fingertips. With two full-line supermarkets, an extensive array of fresh food merchants and plenty of charming cafes and restaurants, Carnegie is filled to the brim with accessible options.

The Carnegie activity centre is conveniently connected by a range of transport modes, including trains, trams, buses, pedestrian networks and roads. A recently refurbished train station offers access to the CBD within 20 minutes.

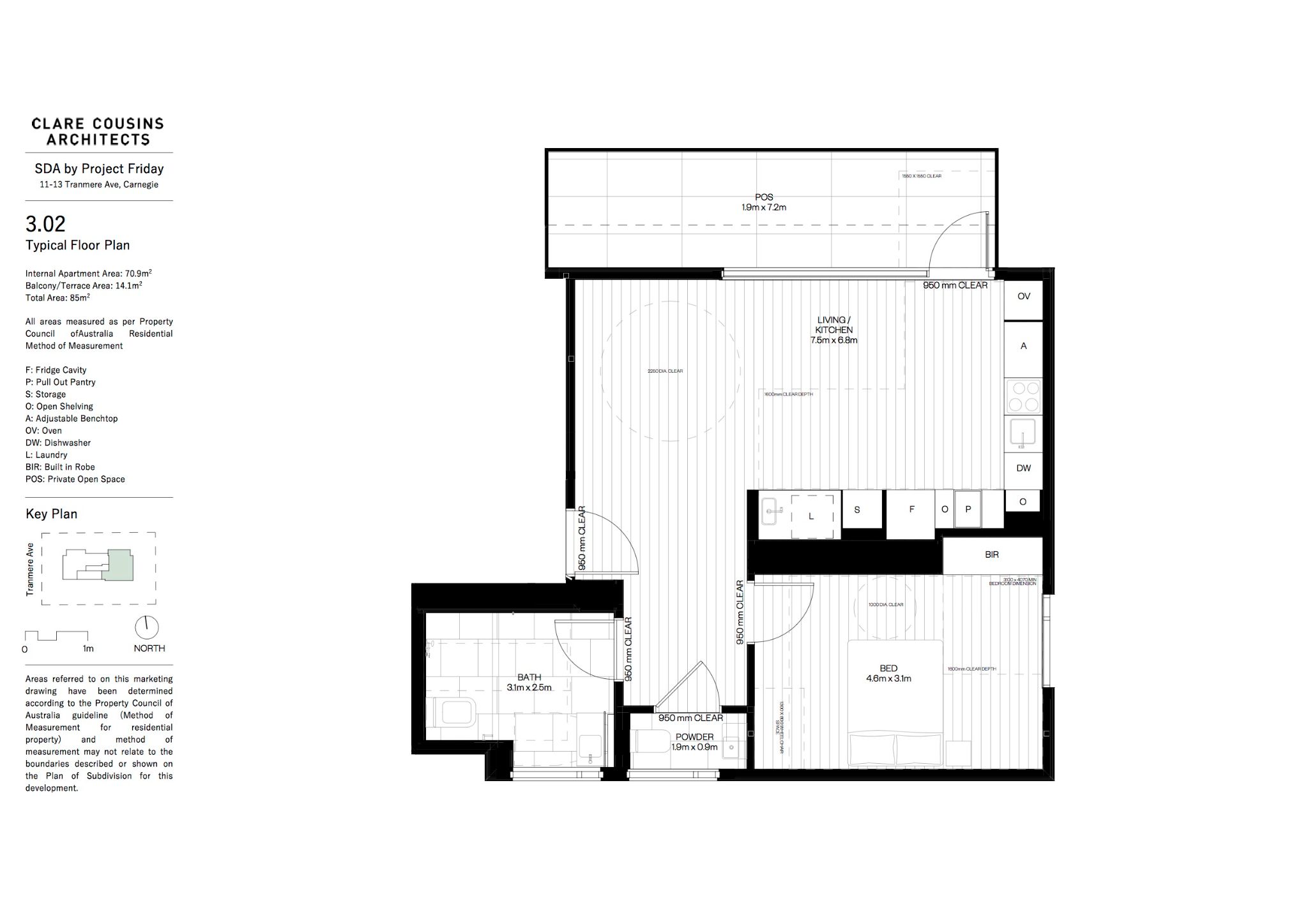
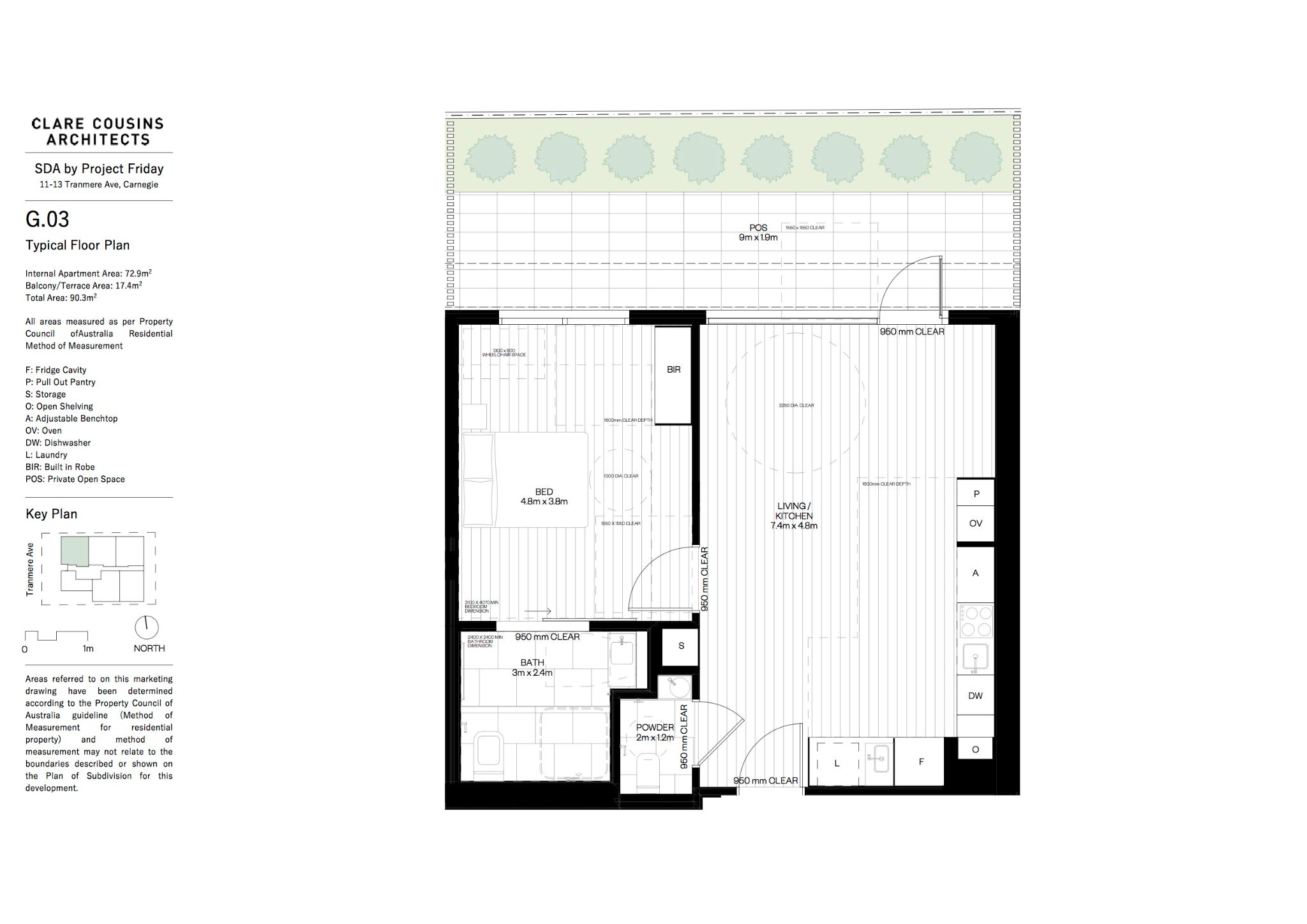
Our luxury complex offers both High Physical Support and Fully Accessible apartments designed to meet your individual needs. Each apartment comes fully equipped with a customisable kitchen, bathroom and laundry, in addition to a wheelchair-accessible private outdoor area and an additional guest powder room.

For seamless access to support, we’ve also installed a two-way communication system, enabling participants to contact support workers located in the apartment’s separate overnight accommodation when required.

We’re proud to say that these spaciously designed, light-filled apartments achieve Platinum level certification under the Liveable Housing Design Guidelines, and meet High Physical Support design requirements under the NDIS.

How much does it cost to live in these apartments?

The SDA funding in your NDIS plan will be paid to SDA by Project Friday. Note: We will not take your Reasonable Rent Contribution, which is 25% of your Disability Support Pension.

You can read more about these 9 Pillars by downloading our SDA by Project Friday Information Booklet from our website www.projectfriday.com.au, and view our virtual tour via this link;

https://sdabyprojectfridayfinalamended.s3.ap-southeast-2.amazonaws.com/index.htm.

For more information about these apartments, eligibility requirements and the application process, please contact Greg Frid on 1300 885 272 or via email sda@projectfriday.com.au

Interested in this property?
Here are your options

Ready to apply? Share your details with the provider

Need more detail? Ask the property provider a question

Register to favourite

Property Features

The building
Single storey
Access
Lift access Stair access Ramp access Automatic doors Ceiling hoist Wide doorframes Wide pathways
Environment
Air conditioning Compatible to Environmental Control Units (ECU) Heating
Outside
Secure backyard Secure frontyard Raised garden bed Garden Deck/verandah Outdoor living/entertainment area Undercover access from parking to property
Shared Living
Storage for personal equipment Window Built-in robe Direct access to yard / courtyard / garden Private/ensuite bathroom Private living space Private kitchen Private laundry Pet friendly
Registered SDA: Yes
SDA Category: High Physical Support
Stay Duration Permanent

Provider Details

SDA Provider: Project Friday

What's nearby

Transport 5min
Shopping 5min
Other Cafes, local parks, local library

Area Map

Interested in this property?
Here are your options

Ready to apply? Share your details with the provider

Need more detail? Ask the property provider a question

Register to favourite