Skip to content

Content

Improved Liveability House, Bundamba

Bundamba QLD 4304

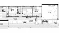
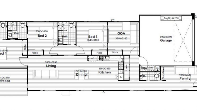
3 bed

2 bath

Make this Bundamba High Physical Support house your new home.

The Village is a prestigious is a new estate in the highly sought after Ipswich suburb of Bundamba. It has convenient access to public transport, a Costco around the corner and many more amenities at your fingertips.

Each bedroom in this modern new build comes with its own ensuite for added privacy, as well as spacious rooms for accessible living. Split system air conditioning has been installed throughout all bedrooms within the house. With an Overnight Onsite Accommodation room at the front of the house, participants can rest assured they have support available to them 24/7.

ADAPT Housing are seeking Expressions of Interest from SDA participants or families with Improved Liveability or Fully Accessible in their NDIS plan. This could also include participants with SDA or seeking SDA as a key goal. Contact ADAPT Housing on 1300 223278 or email ADAPT Housing on info@adapthousing.com.au to learn more about our homes and the ADAPT model.

Interested in this property?
Here are your options

Ready to apply? Share your details with the provider

Need more detail? Ask the property provider a question

Register to favourite

Property Features

The building
Single storey
Access
Wide doorframes
Environment
Air conditioning Compatible to Environmental Control Units (ECU) Heating
Outside
Outdoor living/entertainment area
Shared Living
Storage for personal equipment Built-in robe Private/ensuite bathroom Private living space Private kitchen Pet friendly
Registered SDA: Yes
SDA Category: Improved Liveability
Stay Duration Permanent
Medium term

Provider Details

SDA Provider: ADAPT Housing

What's nearby

Local terrain 15-minute drive to Ipswich Hospital
8-minute drive to George Palmer Park
Transport 5-minute drive to nearest train station
Shopping 8-minute drive to Booval Fair Shopping Centre

Area Map

Interested in this property?
Here are your options

Ready to apply? Share your details with the provider

Need more detail? Ask the property provider a question

Register to favourite