Skip to content

Content

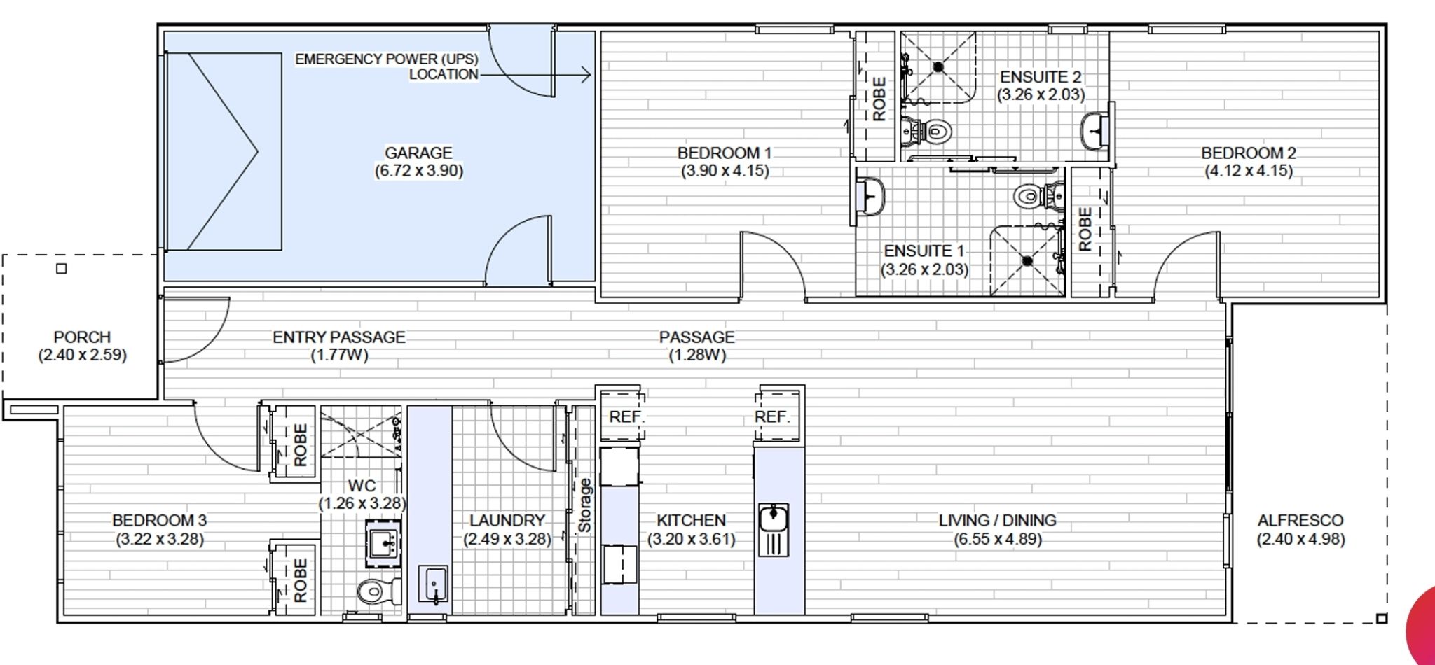
HIGH PHYSICAL SUPPORT SDA HOME

Old Beach TAS 7017

3 bed

3 bath

2 parking
spaces

SDA Strategy is proud to introduce this brand-new Specialist Disability Accommodation (SDA) home in Old Beach.

Purpose built for High Physical Support ne...

Interested in this property?
Here are your options

Ready to apply? Share your details with the provider

Need more detail? Ask the property provider a question

Register to favourite

Property Features

The building
Single storey
Access
Ramp access Ceiling hoist Wide pathways
Environment
Air conditioning Heating
Outside
Secure backyard Outdoor living/entertainment area Pool
Shared Living
Storage for personal equipment
Registered SDA: Yes
SDA Category: High Physical Support
Stay Duration Permanent

Application Criteria

SDA Strategy is proud to introduce this brand-new Specialist Disability Accommodation (SDA) home in Old Beach.

Purpose built for High Physical Support ne...

Area Map

Interested in this property?
Here are your options

Ready to apply? Share your details with the provider

Need more detail? Ask the property provider a question

Register to favourite