Skip to content

Content

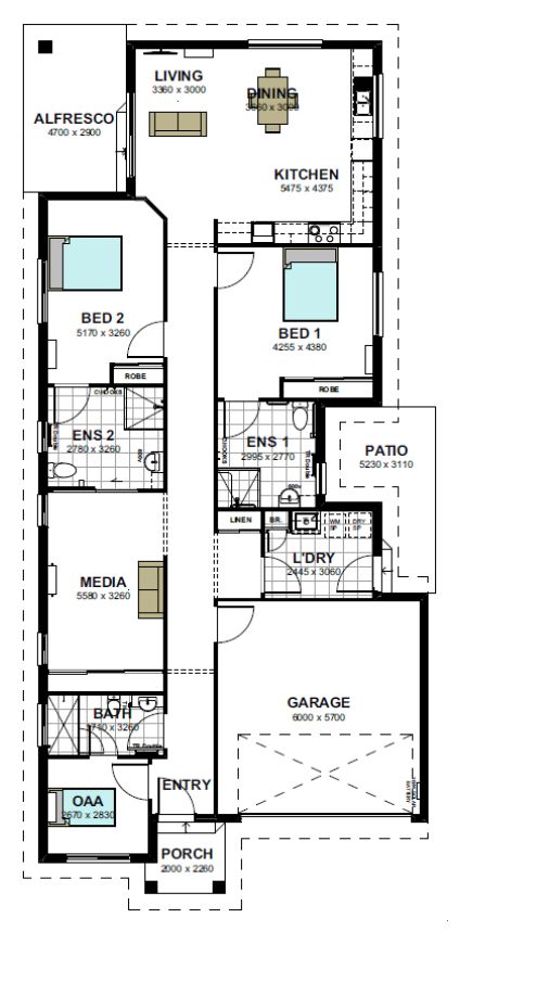
High Physical Support House, Banya

Bells Creek QLD 4551

2 bed

2 bath

2 parking
spaces

Situated in the idyllic Sunshine Coast hinterland, this unique property offers High Physical Support in an ideal location. With indoor/outdoor living, a designer kitchen, air conditioning and an en-suite in each room, this home is perfect for anyone seeking an accessible, comfortable home. The property is located: 

20 minutes from Caloundra beaches

15 minutes to Sunshine Coast University Hospital

5 minutes to parks and playgrounds

10 minutes to shops and cafes

To apply for this exciting new residence please complete a participant Expression of Interest form. Please feel free to contact us on 1300 223278 or email ADAPT Housing on info@adapthousing.com.au to learn more about our homes and the ADAPT model.

Interested in this property?
Here are your options

Ready to apply? Share your details with the provider

Need more detail? Ask the property provider a question

Register to favourite

Property Features

The building
Single storey
Access
Ramp access Wide doorframes Wide pathways
Environment
Air conditioning
Outside
Garden Outdoor living/entertainment area Undercover access from parking to property
Shared Living
Storage for personal equipment Built-in robe Private/ensuite bathroom Shared living space Shared kitchen Shared laundry
Registered SDA: Yes
SDA Category: High Physical Support
Stay Duration Permanent

Provider Details

SDA Provider: ADAPT Housing

Area Map

Interested in this property?
Here are your options

Ready to apply? Share your details with the provider

Need more detail? Ask the property provider a question

Register to favourite