Skip to content

Content

Modern Furnished 2-Participant HPS SDA Home with 24/7 Support in Wollert

Wollert VIC 3750

3 bed

3 bath

2 parking
spaces

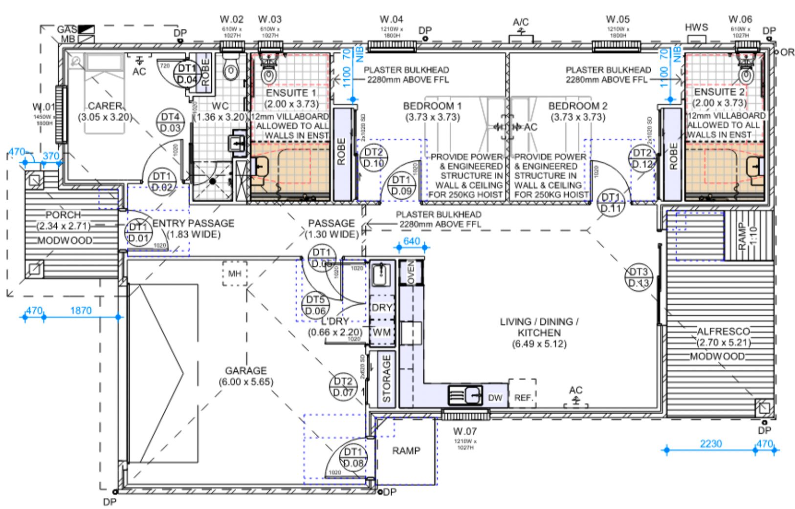
This newly completed Specialist Disability Accommodation (SDA) home in Wollert offers a premium living experience in a quiet, private corner location. Designed for two participants plus an Overnight On-Call Assistance (OOA) room, this High Physical Support (HPS) home is perfect for those seeking independence while having access to essential support and modern amenities.

🏡 Spacious, Accessible & Thoughtfully Designed

✔ Generous Open-Plan Layout – Wide hallways and spacious rooms ensure easy mobility and comfort.

✔ Private Bedrooms – Each resident enjoys a well-sized bedroom, creating a peaceful personal space.

✔ Modern & Accessible Features – Step-free access, high-quality finishes, and contemporary fixtures for convenient daily living.

✔ 24/7 Support Readiness – Includes a dedicated OOA room, ensuring care is always within reach.

Wollert offers a peaceful, supportive environment for individuals with physical or psychosocial needs. Surrounded by green spaces and quiet streets, it’s perfect for those seeking stability and a calming atmosphere. The area is close to essential healthcare services, including Northern Hospital Epping and various local clinics, making access to medical care convenient and reliable.

Daily living is easy, with nearby shopping centres like Epping North providing everything from groceries to pharmacy needs. Despite its convenience, Wollert remains free from the noise and stress of over-commercialized suburbs.

The area is also well-connected by major roads, ensuring smooth travel for support staff or visiting family members. As a diverse and inclusive community, Wollert offers a sense of belonging and acceptance—an important foundation for wellbeing and recovery.

For participants looking for a safe, balanced lifestyle, Wollert stands out as a highly supportive place to call home.

🛍️ Convenient Access to Shopping & Community

• Wollert Community Centre – 5-min drive

• Aurora Village – 10-min drive

• Epping North Shopping Centre – 12-min drive

🏥 Nearby Healthcare & Medical Services

• Aurora Village Medical Center – 10-min drive

• Group One Medical – 7-min drive

• Northern Medicals – 10-min drive

• Lyndarum Family Clinic – 11-min drive

• Northern Private Hospital – 15-min drive

🚆 Seamless Public Transport Access

• Craigieburn Railway Station – 20-min drive

📩Secure Your Place Today!

Interested in this property?
Here are your options

Ready to apply? Share your details with the provider

Need more detail? Ask the property provider a question

Register to favourite

Property Features

The building
Single storey
Access
Wide doorframes Wide pathways
Environment
Air conditioning
Outside
Secure backyard Deck/verandah
Shared Living
Storage for personal equipment Window Built-in robe Private/ensuite bathroom Shared living space Shared kitchen Shared laundry
Registered SDA: Yes
SDA Category: High Physical Support
Stay Duration Permanent
Medium term

Provider Details

SDA Provider: Ops Care Pty Ltd SIL Provider: Cornerstones Community Services PTY LTD

What's nearby

Shopping Epping North Shopping Centre

Area Map

Interested in this property?
Here are your options

Ready to apply? Share your details with the provider

Need more detail? Ask the property provider a question

Register to favourite