Skip to content

Content

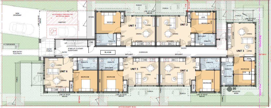
Dandenong - 1 Bedroom Apartments – Vacancy

Dandenong VIC 3175

2 bed

1 bath

1 parking
space

PROTIMO homes are purpose built for people living with disability and complex support needs, providing them with an opportunity to live independently. Our properties are designed and constructed to meet accessible housing best practice and are certified to the relevant Specialist Disability Accommodation (SDA) design category.

In conjunction with our SIL partner Claro Aged Care and Disability Services, we ensure that National Disability Insurance Agency (NDIA) funds are available to provide the assistive technology required to live independently and safely. All our homes are automation ready, creating a controllable environment through a variety of personal devices, voice activation and discreet wall-mounted buttons. This includes controlled lighting, blinds, doors, heating and cooling.

Modern and comfortable interior spaces are fully sprinkler protected and built with non-combustible, natural materials, and can be easily modified to meet the needs of our residents.

Funding:

*To be eligible for Specialist Disability Accommodation, you will need to be a NDIS participant and your plan needs to include approved Specialist Disability Accommodation Funding. If you are unsure if you qualify, have a chat with your NDIS coordinator or contact intake@claro.com.au

Interested in this property?
Here are your options

Ready to apply? Share your details with the provider

Need more detail? Ask the property provider a question

Register to favourite

Property Features

The building
Single storey
Access
Wide doorframes Wide pathways
Environment
Air conditioning Heating
Shared Living
Window Built-in robe Private/ensuite bathroom Private living space Private kitchen Private laundry
Registered SDA: Yes
SDA Category: Fully Accessible
High Physical Support
Stay Duration Permanent

Provider Details

SDA Provider: ACARES SIL Provider: Claro Aged Care Disability Services

What's nearby

Local terrain 863m to the nearest park at John Hemmings Memorial Park, Princes Highway, Dandenong VIC, Australia.
Transport 1km to the nearest train station at Dandenong Station, Dandenong VIC, Australia.
922m to the nearest bus stop at Princes Hwy/Potter St, Dandenong VIC, Australia.
Shopping 980m to the nearest shopping centre at Dandenong Plaza, McCrae Street, Dandenong VIC, Australia.
Other 251m to the nearest hospital at Dandenong Hospital, David Street, Dandenong VIC, Australia.
1km to the nearest medical practice (GP) at Dandenong West Medical Centre, Hemmings Street, Dandenong VIC, Australia.

Area Map

Interested in this property?
Here are your options

Ready to apply? Share your details with the provider

Need more detail? Ask the property provider a question

Register to favourite