Skip to content

Content

Moe

Moe VIC 3825

2 bed

2 bath

2 parking
spaces

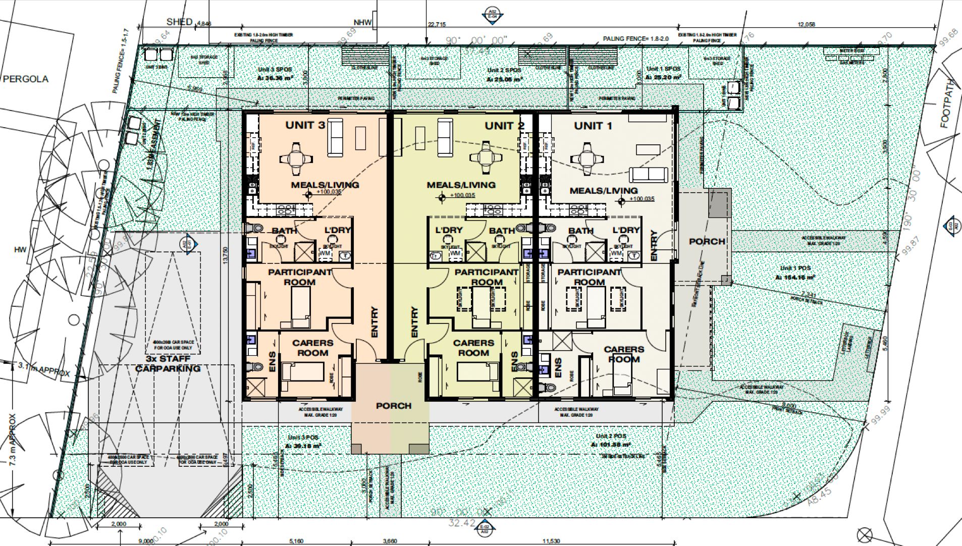
This brand new home in Moe is four single villas with an OOA in each individual villa. All with their own entrance and backyard space. This home is built at Robust, however, accepting Improved Liveability levels. This home has ensuites and support can be individual, such as bring your own provider, or share with others.

Interested in this property?
Here are your options

Ready to apply? Share your details with the provider

Need more detail? Ask the property provider a question

Register to favourite

Property Features

The building
Single storey
Access
Ramp access Wide doorframes Wide pathways
Environment
Air conditioning Heating
Outside
Secure backyard
Shared Living
Storage for personal equipment Window Built-in robe Direct access to yard / courtyard / garden Private/ensuite bathroom Private living space Private kitchen Private laundry Pet friendly
Registered SDA: Yes
SDA Category: Improved Liveability
Robust
High Physical Support
Stay Duration Permanent
Medium term

Provider Details

SDA Provider: Life Care Assist

Area Map

Interested in this property?
Here are your options

Ready to apply? Share your details with the provider

Need more detail? Ask the property provider a question

Register to favourite