Skip to content

Content

Live in Leafy Narre Warren

Narre Warren North VIC 3804

5 bed

2 bath

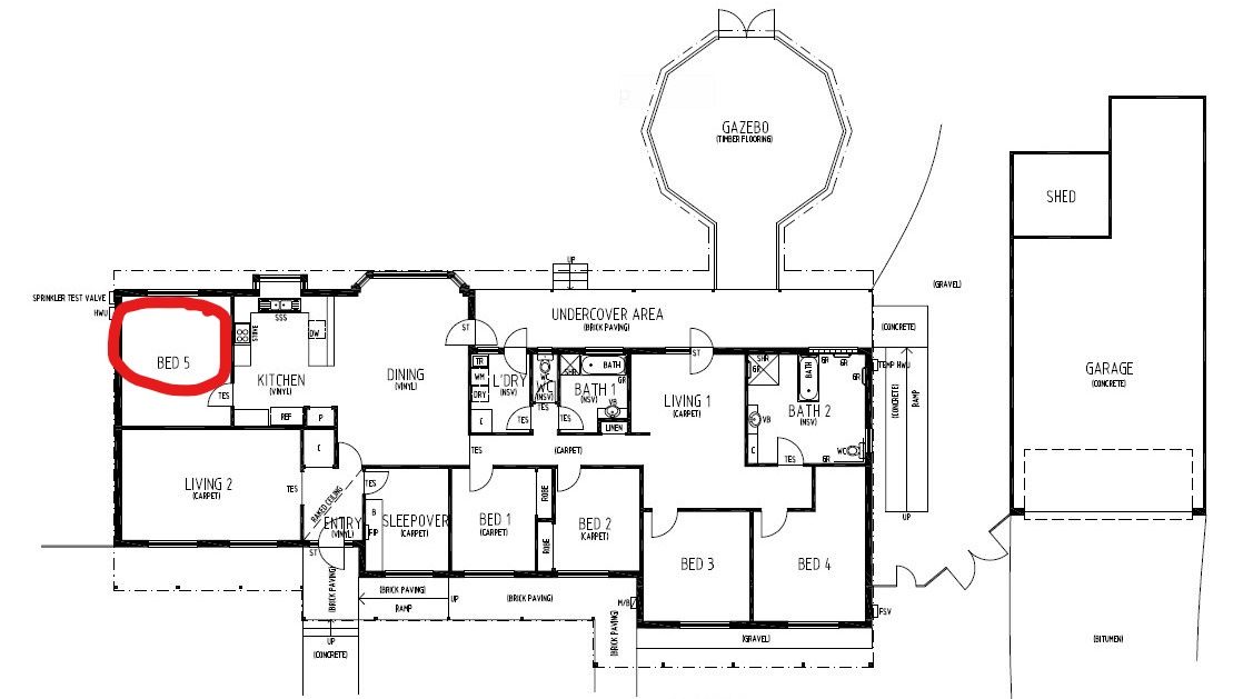
This 5-bedroom brick veneer home has an open plan kitchen and dining room, two living areas and two bathrooms with ducted heating and cooling throughout the property. The main bathroom is fully accessible with stepless shower, vanity, toilet and bath. There is a spacious entertaining gazebo area in the huge rear yard with ample lawn space for outdoor enjoyment with family and friends.

The vacant bedroom (bedroom 5) is located next to the kitchen and has ample natural light. It has built in robes, heating and cooling.

The home is close to public transport with Narre Warren Station and bus stops nearby and is a short drive to the local shopping centres at Fountain Gate and Narre Warren North Village. There are cafes and restaurants in the area and Village cinema complex is located at Fountain Gate. A number of parks and reserves are located in the local area for walking and outdoor activities.

Interested in this property?
Here are your options

Ready to apply? Share your details with the provider

Need more detail? Ask the property provider a question

Register to favourite

Property Features

The building
Single storey
Environment
Air conditioning Heating
Outside
Secure backyard Garden Deck/verandah Outdoor living/entertainment area
Shared Living
Window Built-in robe Shared bathroom Shared living space Shared kitchen Shared laundry
Registered SDA: No
Stay Duration Permanent
Medium term

Provider Details

SIL Provider: Wallara Australia

Application Criteria

Wallara is the support service provider of this property offering support seven days a week including sleepover supports. Our staff have experience in positive behaviour support, epilepsy and dietary management.

To apply for this fantastic opportunity, you must be over 18 years of age.

A house and room inspection can be arranged, please contact Lisa Painting at lpainting@wallara.com.au or 0427 621 483.

The current residents (3 females, 1 male), aged between 35-50 years old, are all active and enjoy participating in activities together. They like football, cricket, music, dancing, ten pin bowling, going to the cinema, knitting and swimming. They would like someone to join them who is nice and friendly.

What's nearby

Local terrain Jack Thomas Reserve - 10min walk
Kalora Park - 10 min walk
Transport Narre Warren Station - 10min drive
Bust Stops close by
Shopping Narre Warren Nth Shopping Centre - 5min drive
Fountain Gate Shopping Centre - 7min walk
Other Monash Health Casey Hospital - 13min drive

Area Map

Interested in this property?
Here are your options

Ready to apply? Share your details with the provider

Need more detail? Ask the property provider a question

Register to favourite