Skip to content

Content

Brand New SDA Home in Brookfield!

Brookfield VIC 3338

2 bed

2 bath

1 parking
space

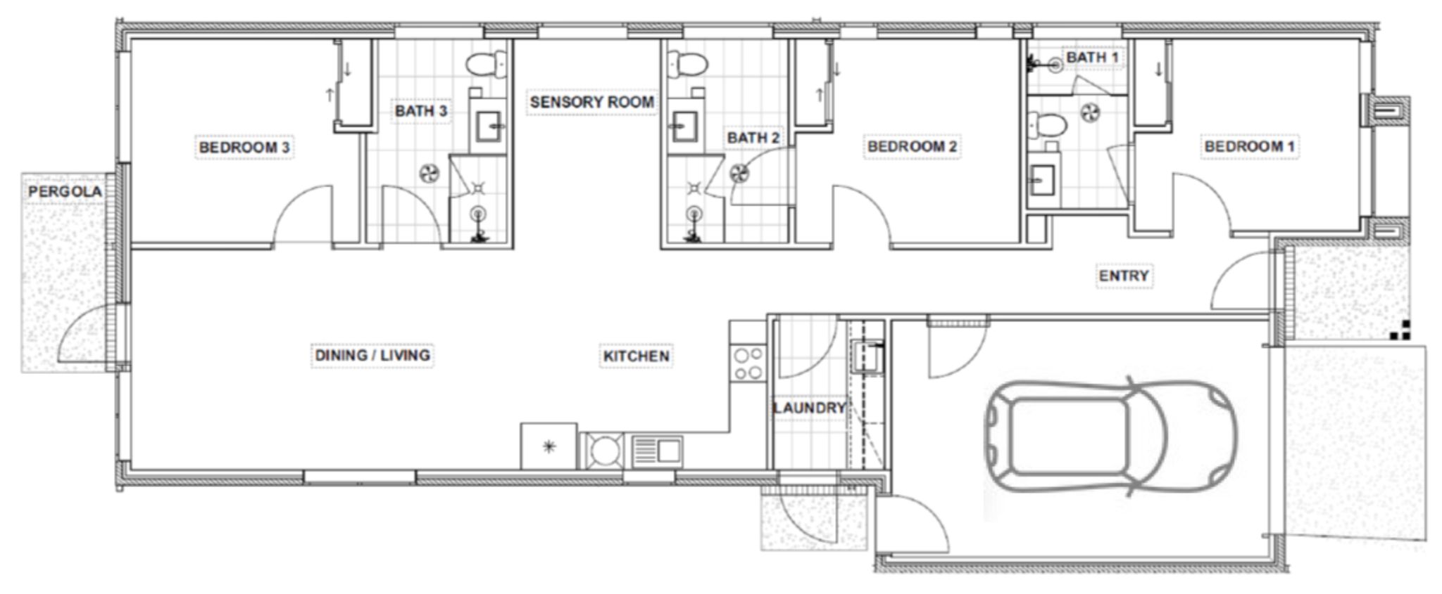
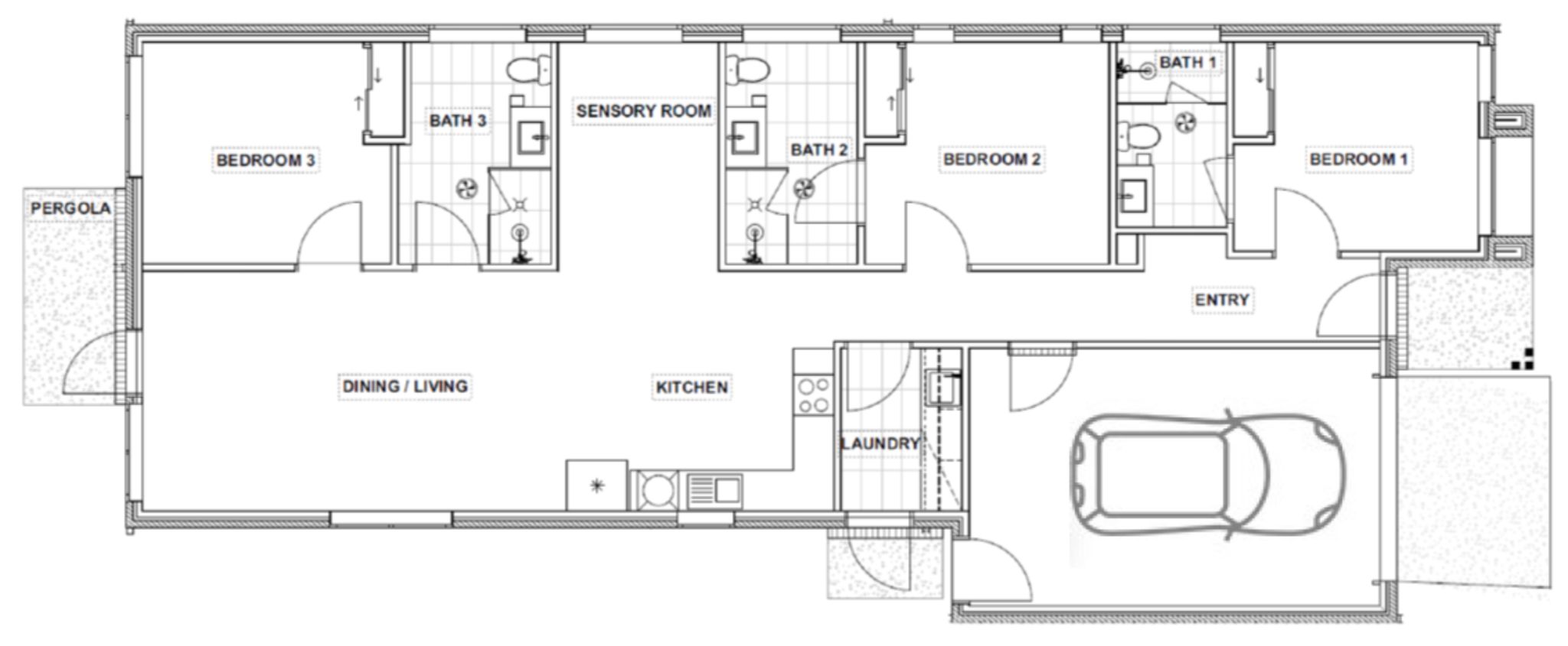
Beautifully Presented Robust House in Brookfield! This stand-out home located in Brookfield is meticulously designed to meet your needs. Comprised of two bedrooms with ensuites and a separate sensory room which is particularly rare for the robust market! This property is located just 30 minutes west of Melbourne's CBD and represents a future of community living. This home is a short drive to Rockbank and Cobblebank train station with future planning of a station right on the doorstep of this house!

Interested in this property?
Here are your options

Ready to apply? Share your details with the provider

Need more detail? Ask the property provider a question

Register to favourite

Property Features

The building
Single storey
Access
Wide pathways
Environment
Air conditioning Heating
Outside
Secure backyard Garden Outdoor living/entertainment area
Shared Living
Window Built-in robe Direct access to yard / courtyard / garden Private/ensuite bathroom Shared living space Shared kitchen Shared laundry
Registered SDA: Yes
SDA Category: Robust
Stay Duration Permanent

Provider Details

What's nearby

Local terrain Brookfield Park
Transport Melton Train Station
Shopping Woodgrove Shopping Centre
Other Westcare Family Medical Centre

Area Map

Interested in this property?
Here are your options

Ready to apply? Share your details with the provider

Need more detail? Ask the property provider a question

Register to favourite