Skip to content

Content

Stylish SDA Apartments in Epping – Modern Living Designed for Independe

Epping VIC 3076

3 bed

3 bath

2 parking
spaces

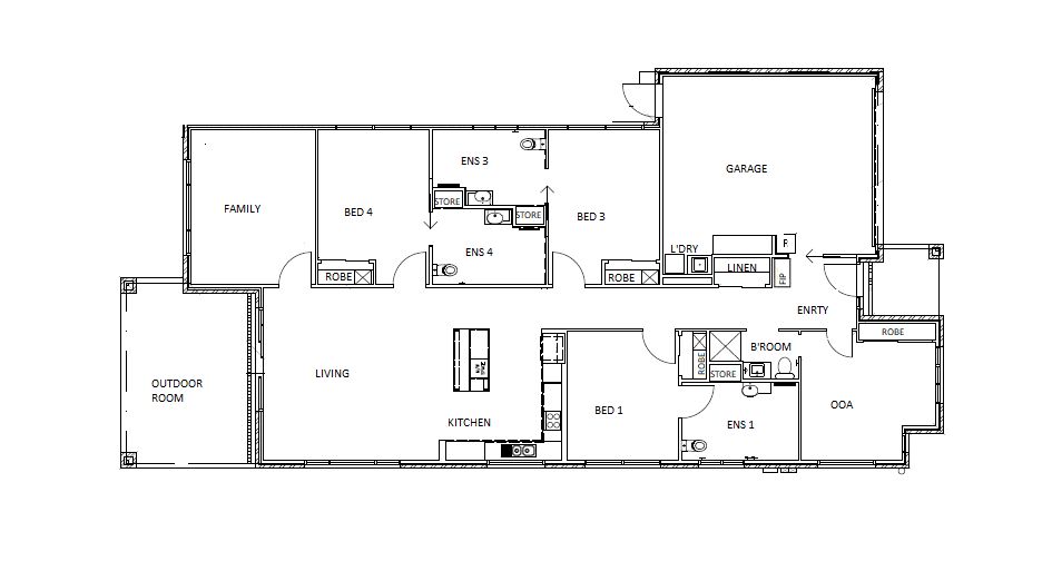
Experience modern, independent living in these beautifully designed Specialist Disability Accommodation apartments in Epping. Built to the High Physical Support SDA Design Standard, this development combines accessibility, comfort, and community in one of Melbourne’s most well-connected northern suburbs.

Each apartment features a spacious bedroom with a private accessible ensuite, along with an open-plan kitchen and living area designed for effortless movement and everyday ease. Step-free access, wide doorways, and assistive-technology readiness ensure safety and convenience throughout. The apartments also include provisions for ceiling hoists and emergency power backup, supporting residents’ independence and comfort.

Residents can enjoy their own private balcony or terrace while also having access to shared community spaces, creating opportunities for connection without compromising privacy. The property includes a dedicated Onsite Overnight Assistance (OOA) room, ensuring 24/7 support is available when needed.

Perfectly located in the heart of Epping, this SDA housing is within walking distance of Pacific Epping Shopping Centre, Northern Hospital, and public transport options. Whether you’re relaxing at home or exploring your local community, everything you need is right at your doorstep.

Claro — awarded the Most Outstanding Disability Support Provider at the 2025 Enablement Awards — has partnered with SDA provider Acares as the onsite care partner for this SDA housing in Epping. Claro is a registered NDIS provider offering Supported Independent Living (SIL) and Community Participation (CP) supports, empowering residents to live confidently, safely, and on their own terms.

To be eligible for Specialist Disability Accommodation, you’ll need to be a NDIS participant and have approved SDA funding in your plan. If you’re unsure, speak with your NDIS coordinator or contact Claro via intake@claro.com.au or the form on this page.

Interested in this property?
Here are your options

Ready to apply? Share your details with the provider

Need more detail? Ask the property provider a question

Register to favourite

Property Features

The building
Single storey
Access
Wide doorframes Wide pathways
Environment
Air conditioning Heating
Shared Living
Window Built-in robe Private/ensuite bathroom Shared living space Shared kitchen
Registered SDA: Yes
SDA Category: High Physical Support
Stay Duration Permanent

Provider Details

SDA Provider: ACARES SIL Provider: Claro Disability Services

What's nearby

Local terrain 2km to the nearest park at Gammage Park, Gammage Boulevard, Epping VIC, Australia.
Transport 2km to the nearest train station at Epping Station, Epping VIC, Australia
2km to the nearest bus stop at Gammage Bvd/Edgars Rd, Epping VIC, Australia.
Shopping 2km to the nearest shopping centre at Pacific Epping, High Street, Epping VIC, Australia.
Other 2km to the nearest hospital at The Northern Hospital, Cooper Street, Epping VIC, Australia
1km to the nearest medical practice (GP) at Epping North Medical Centre, Lyndarum Drive, Epping VIC, Australia.

Area Map

Interested in this property?
Here are your options

Ready to apply? Share your details with the provider

Need more detail? Ask the property provider a question

Register to favourite